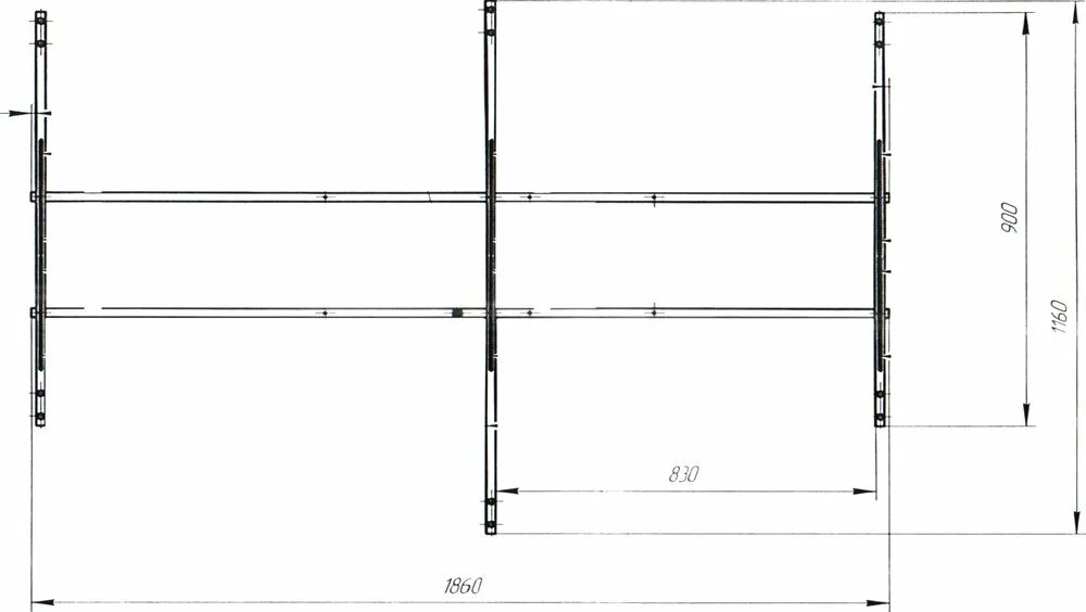
Каркас 1 марка