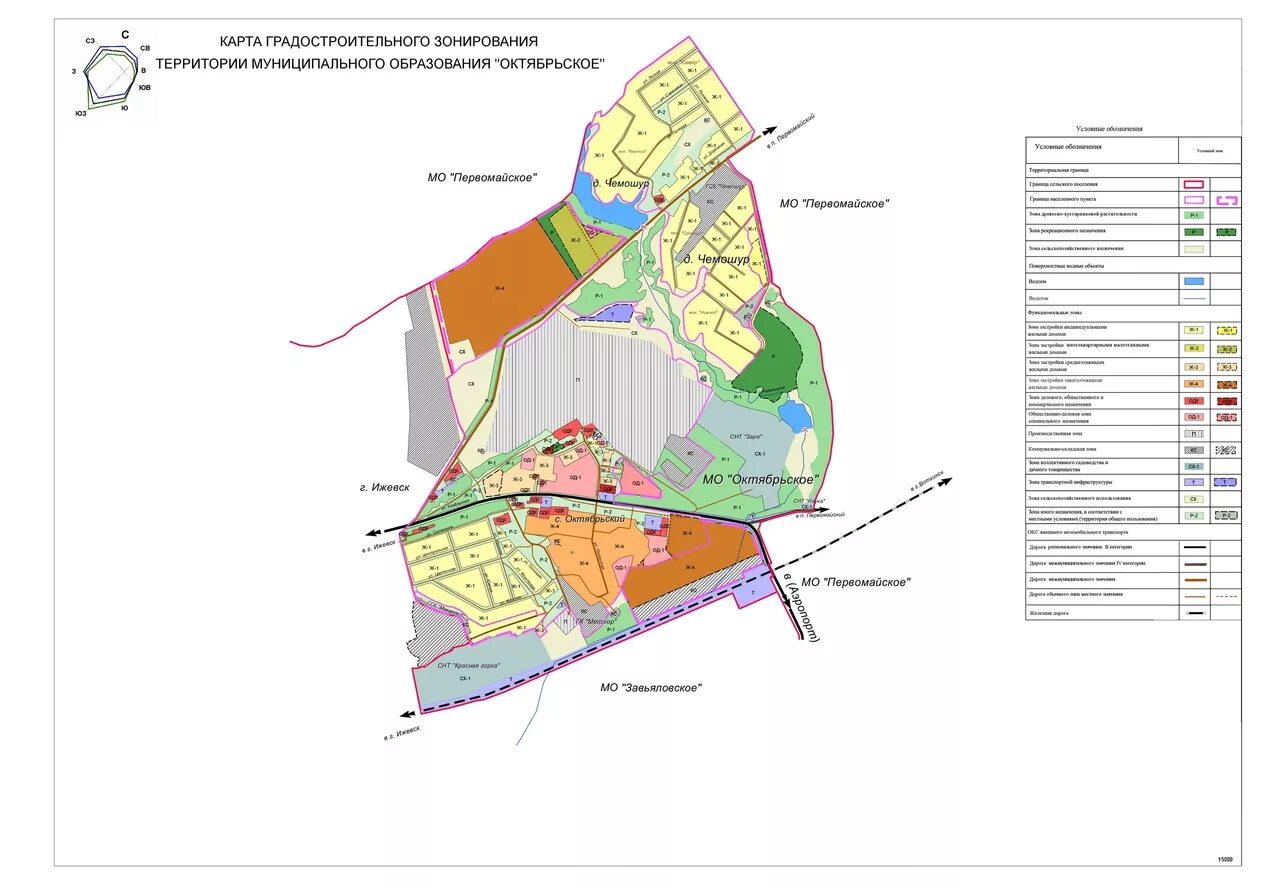
Карта зонирования территории