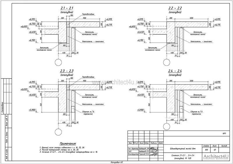
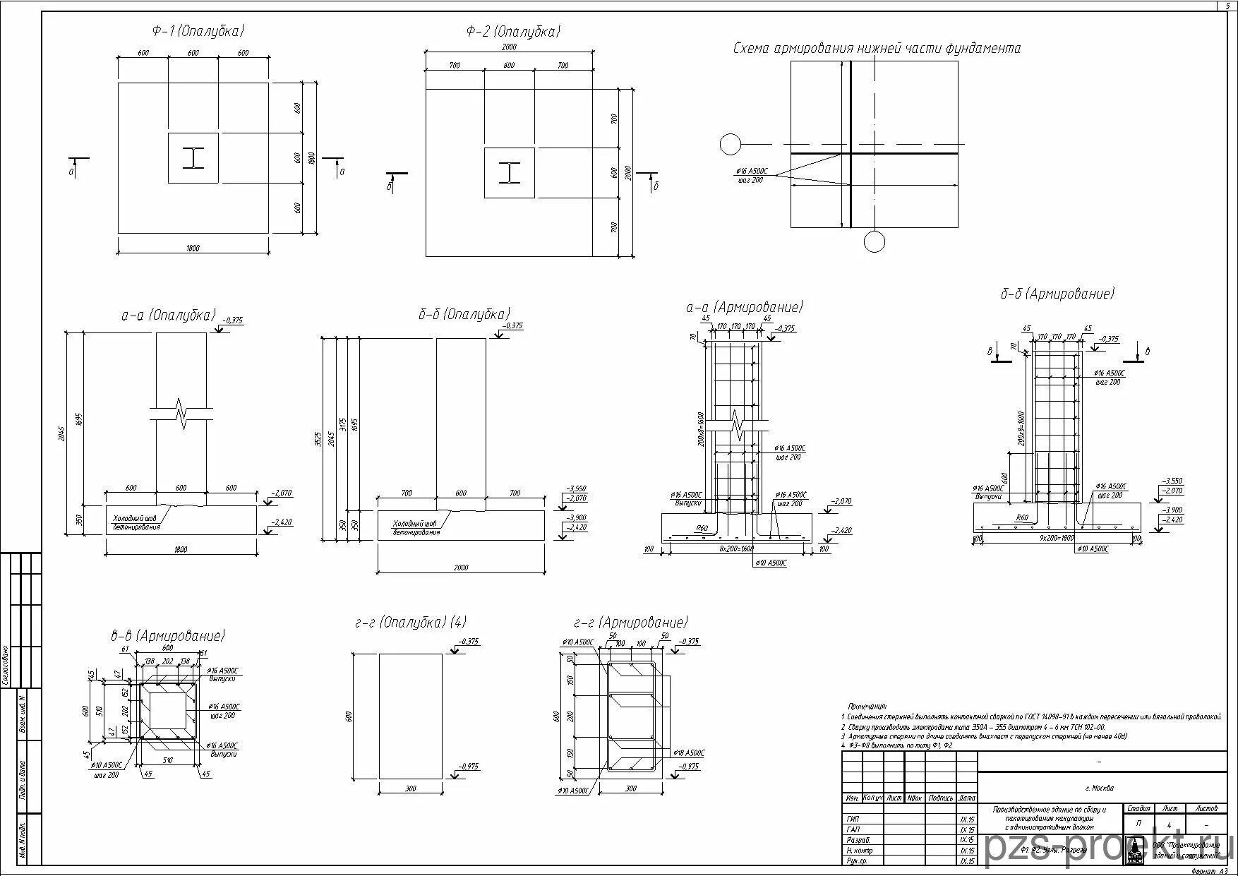
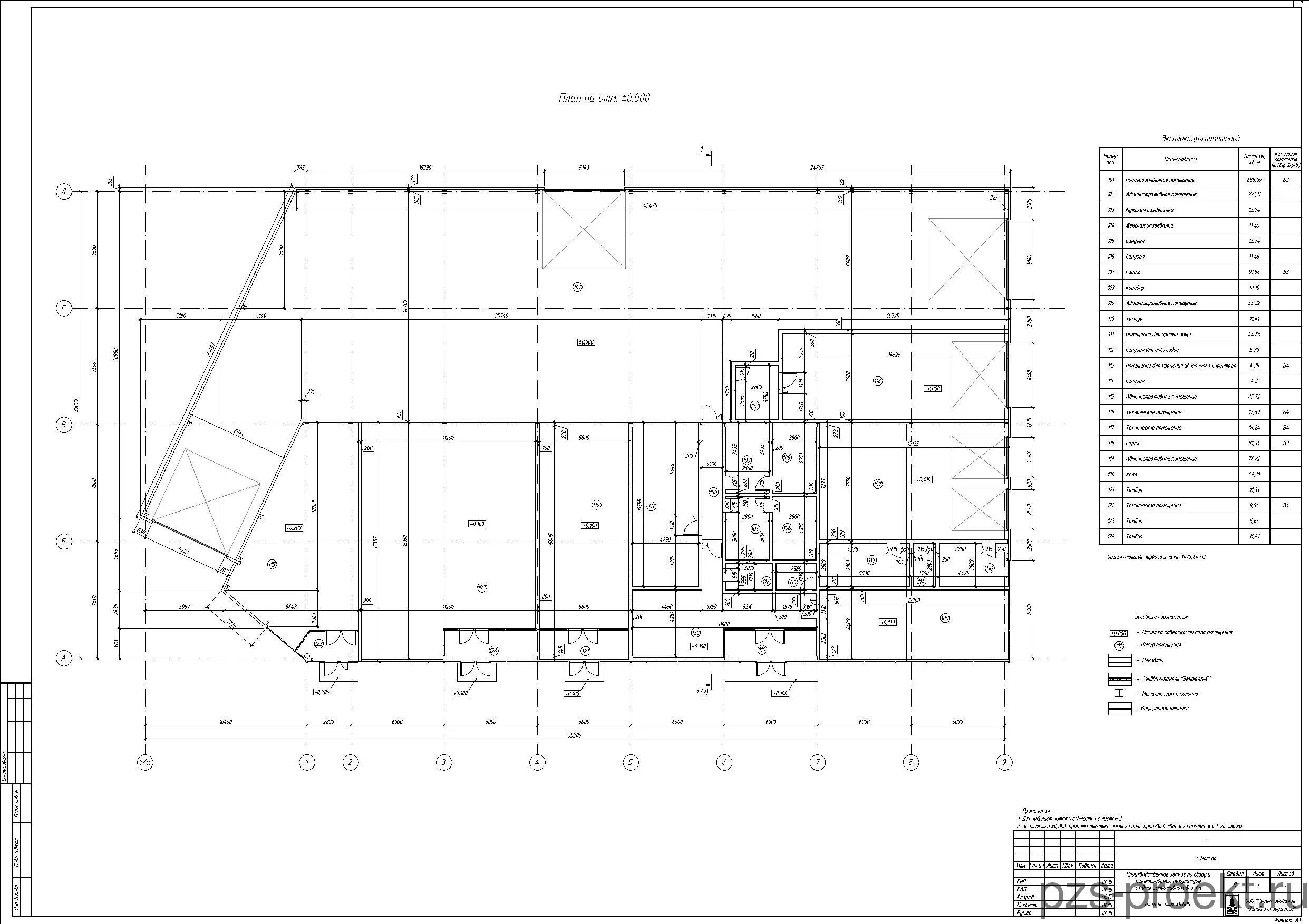
Конструкторское решение конструктивное решение