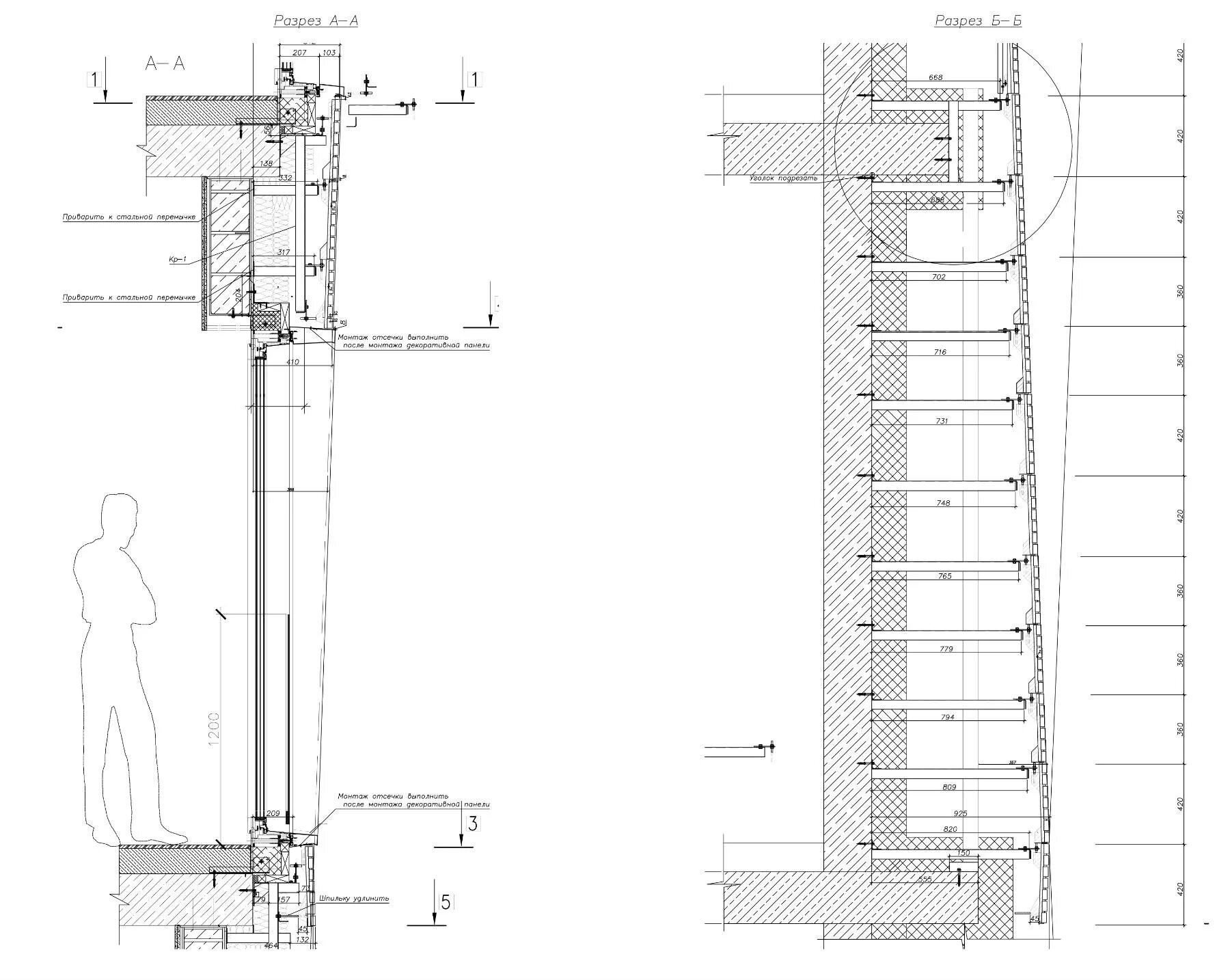
Конструкция стены общественного здания