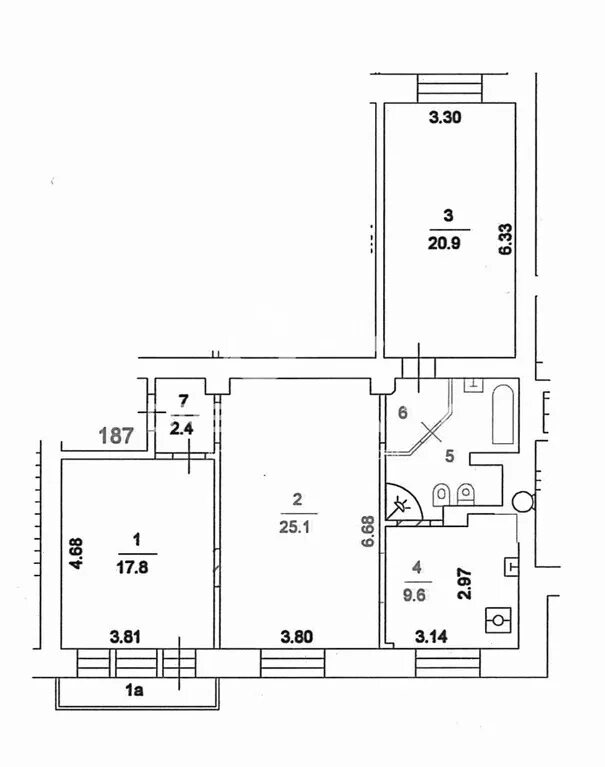
Королева 3 карта