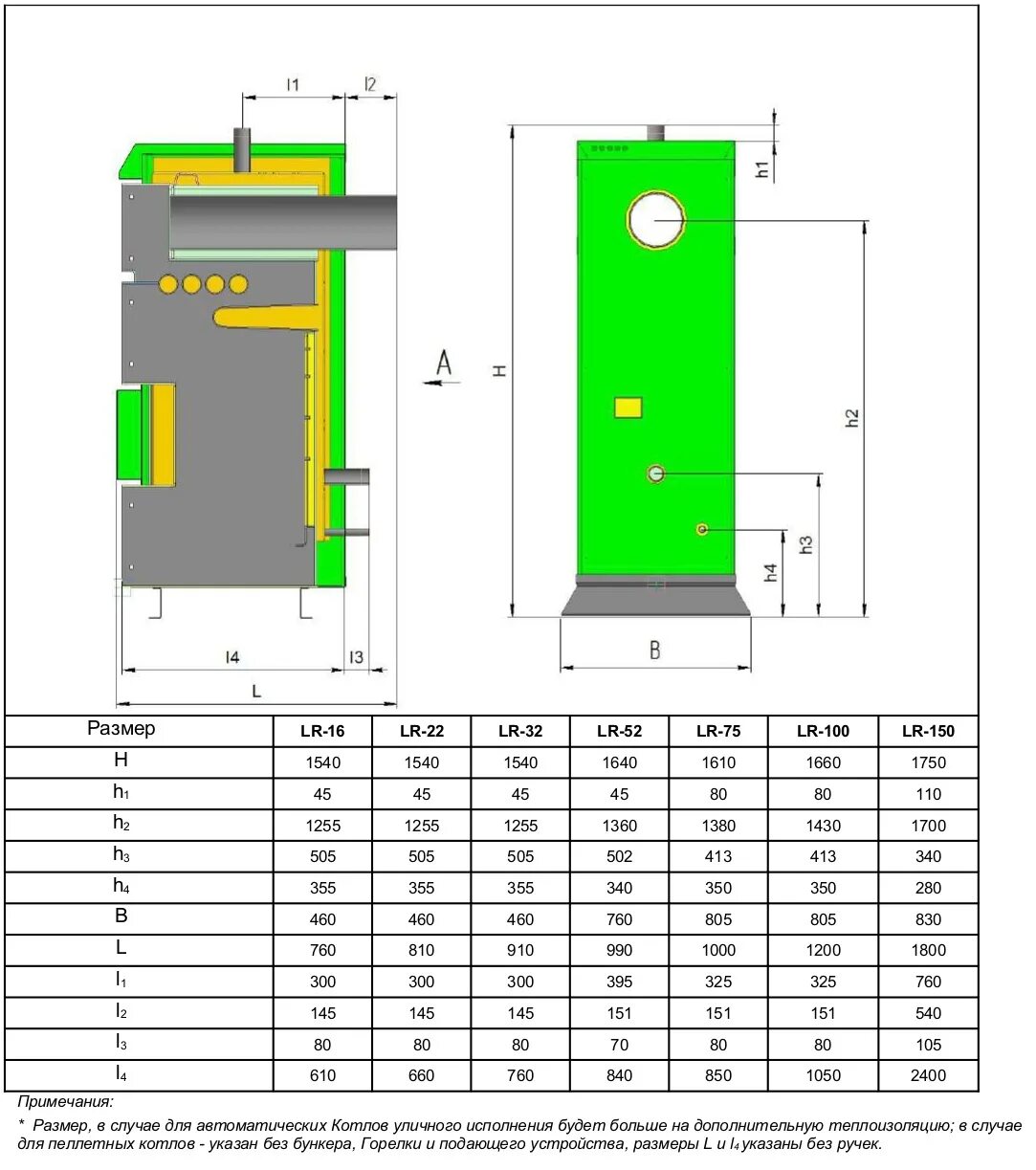
Котел твердотопливный лавора