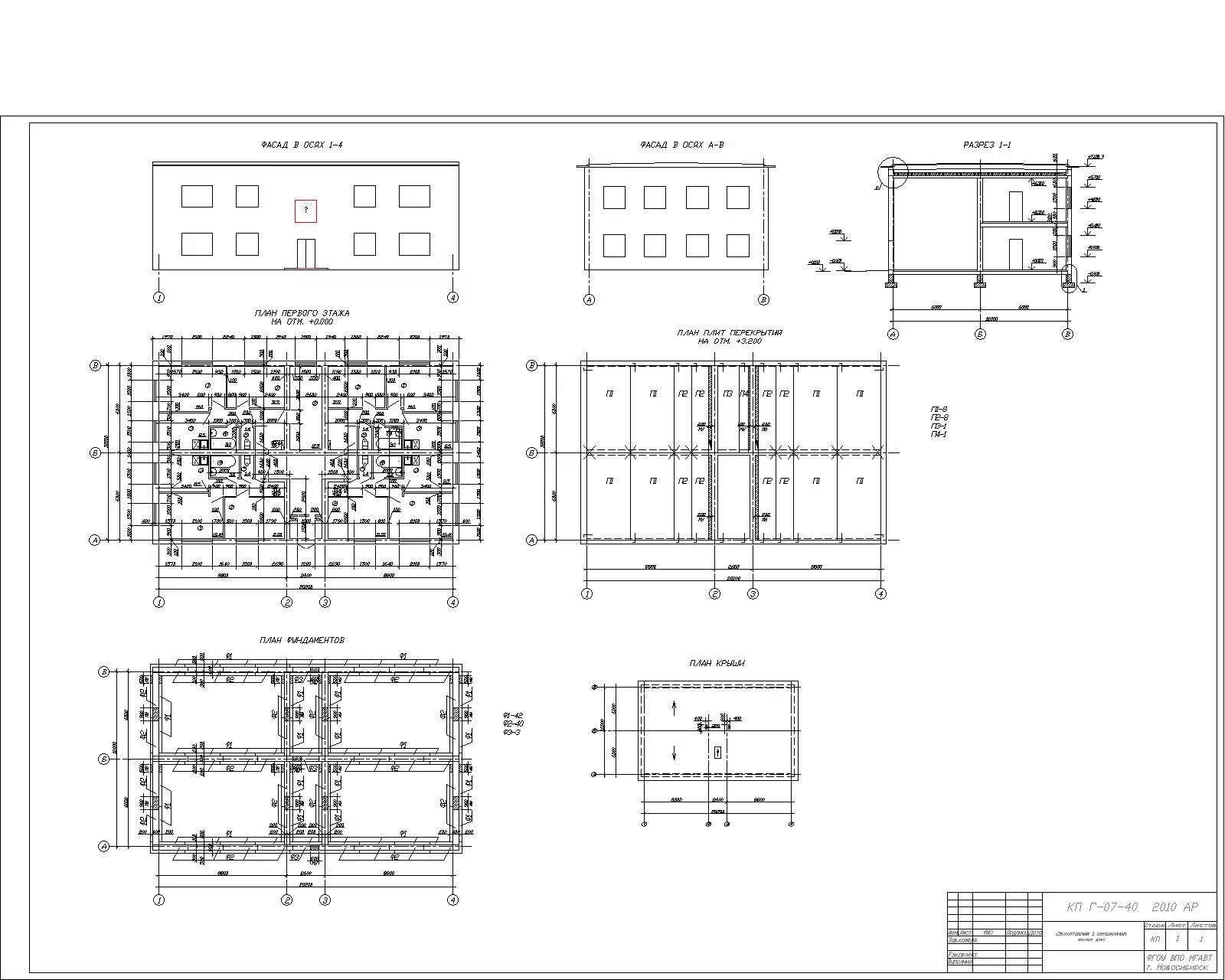
Курсовая работа город