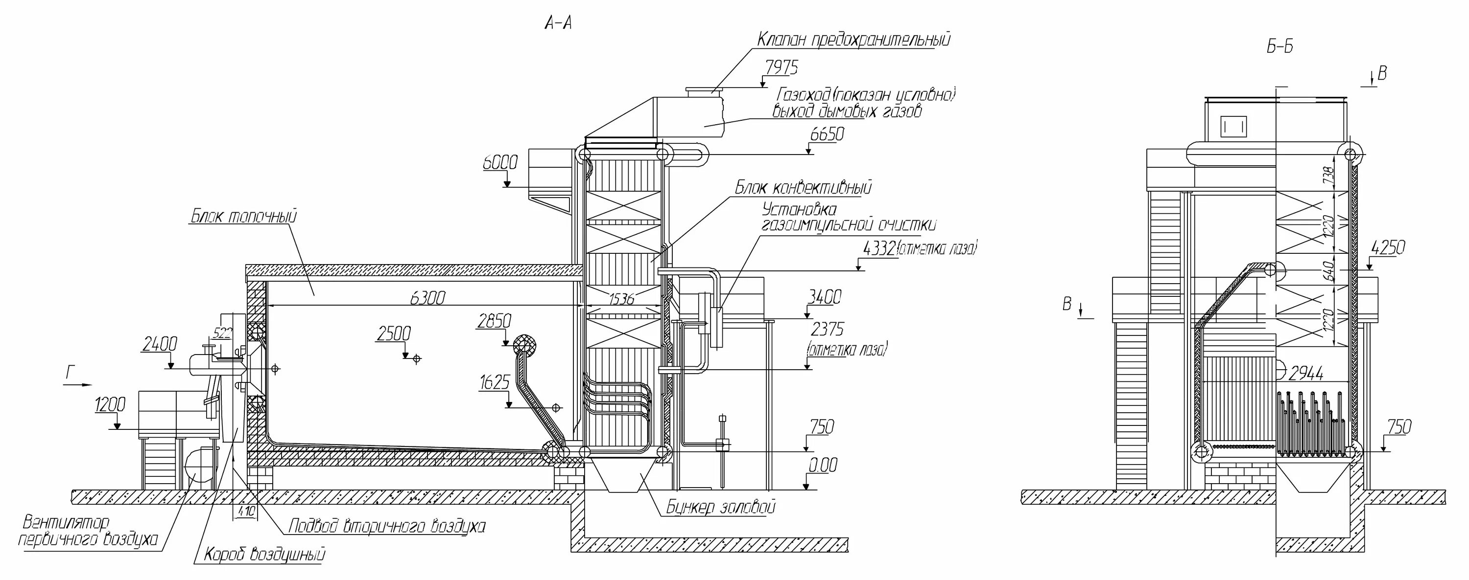
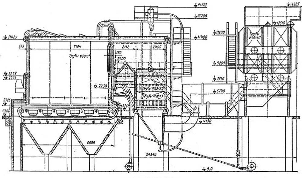
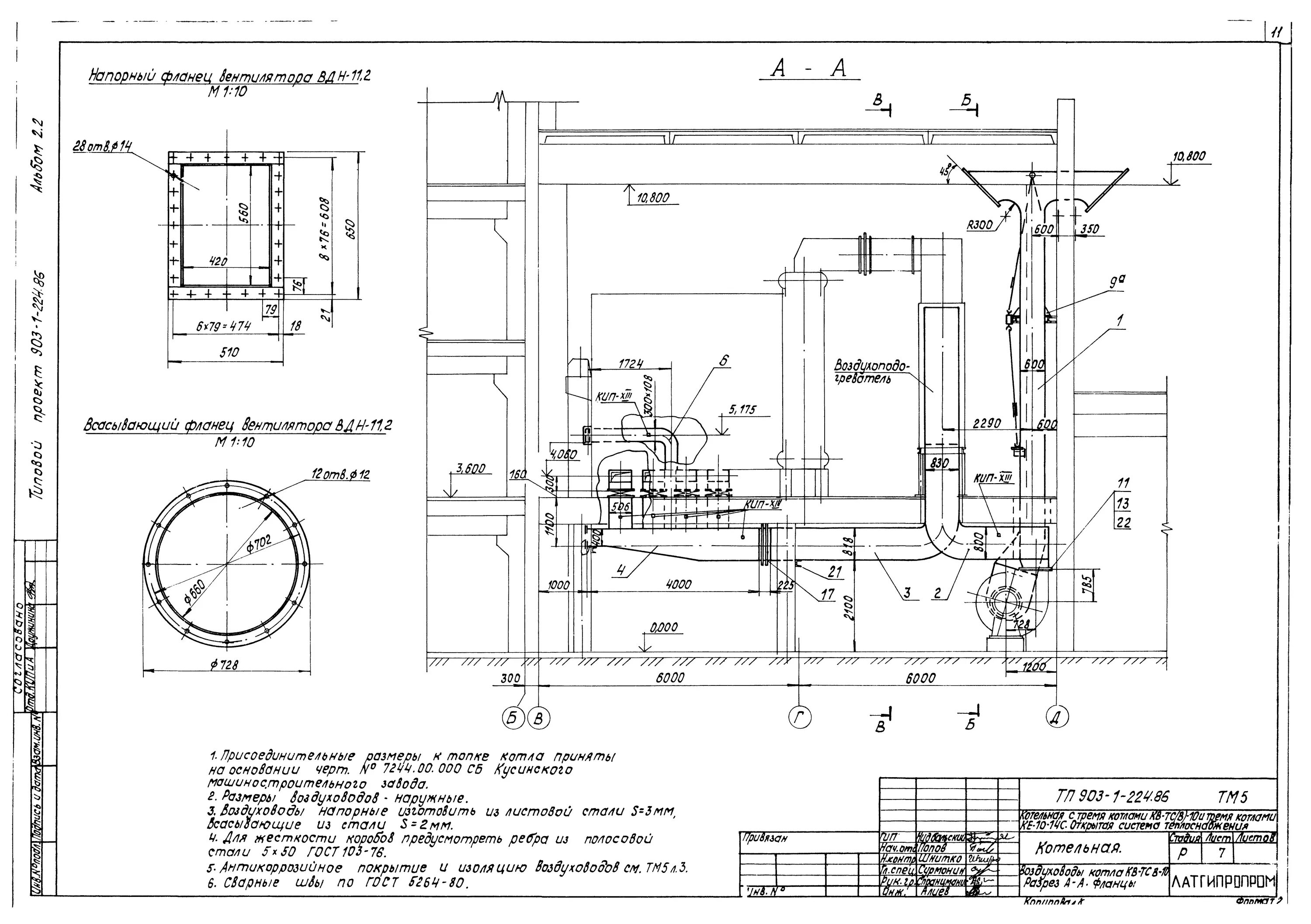
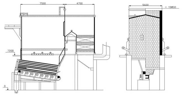
Кв тс 10