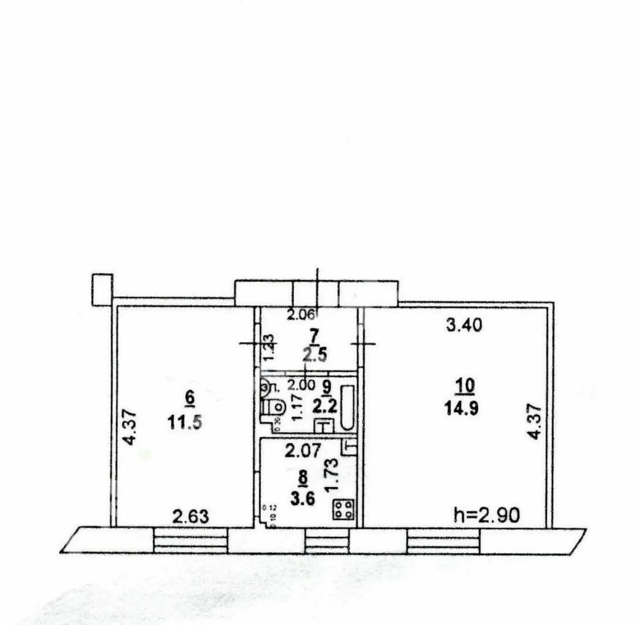
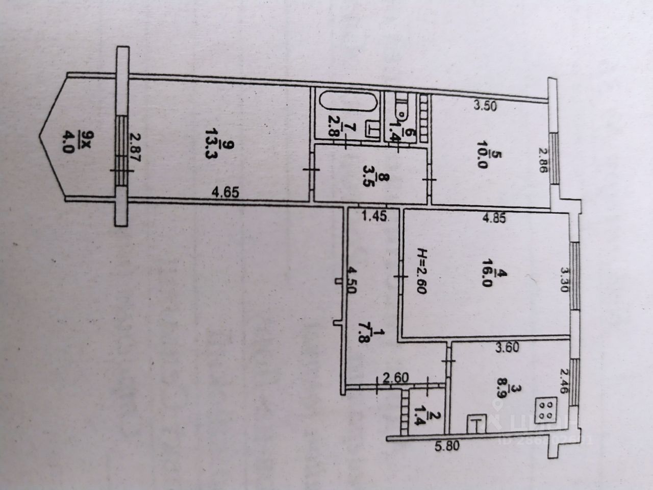
Квартира сельмаш ростов