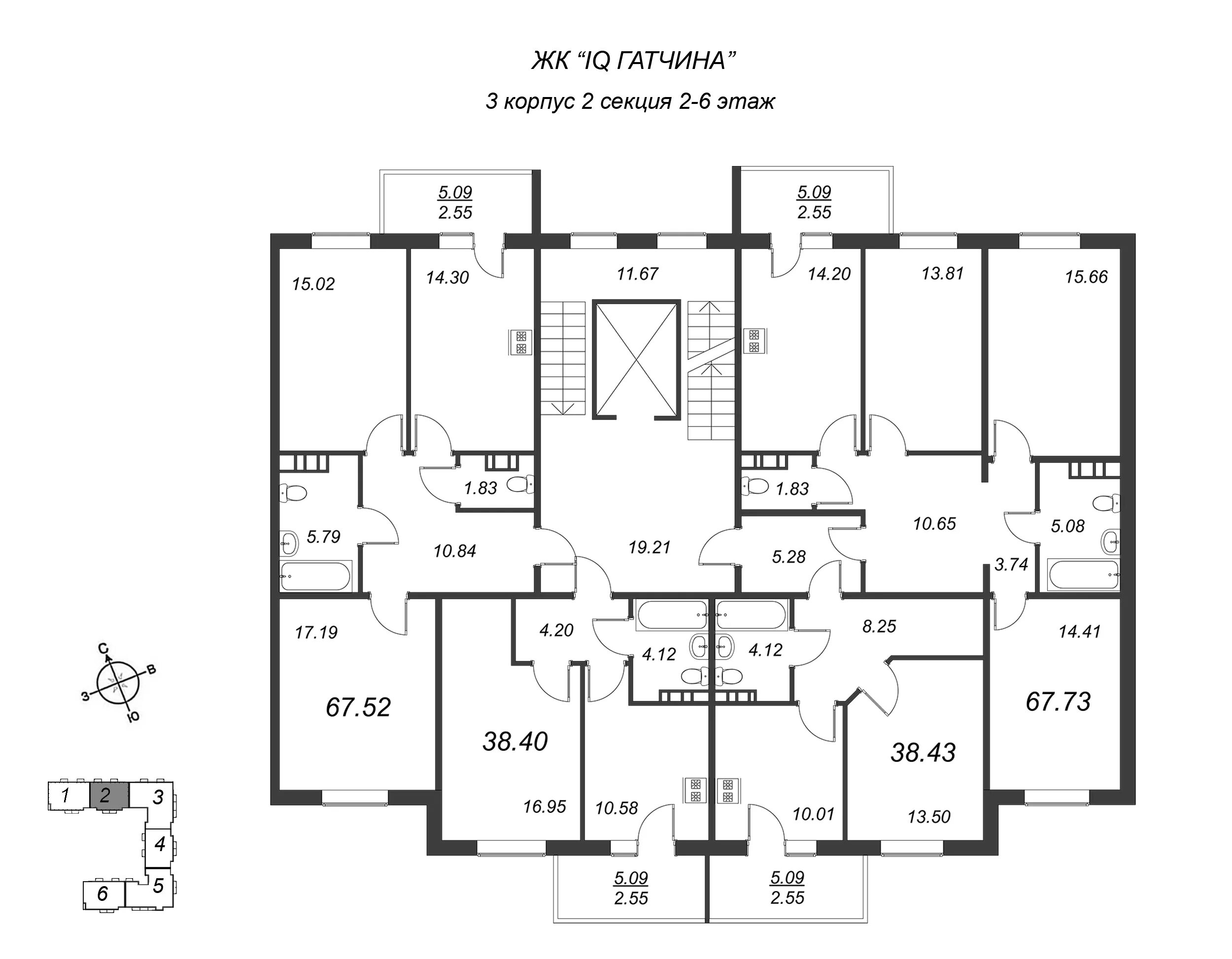
Квартиры iq гатчина