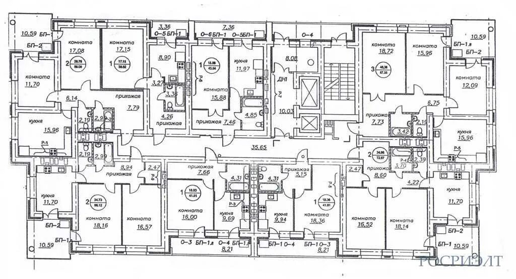
Квартиры на алтайской улице