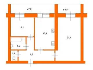
Квартиры в клинцах 2 комнатную