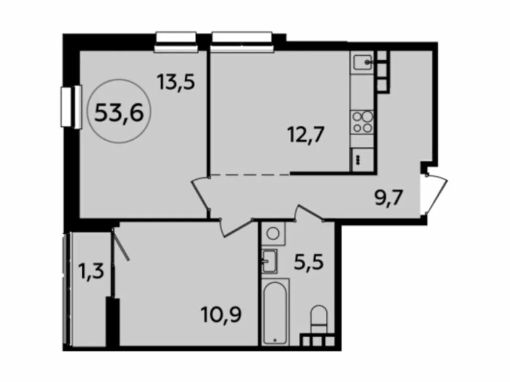
Квартиры в южных садах