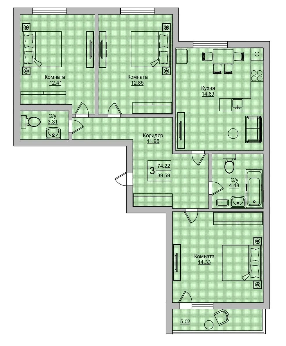
Квартиры в жк пульс