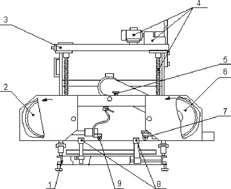
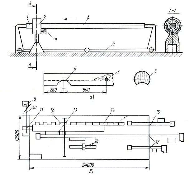
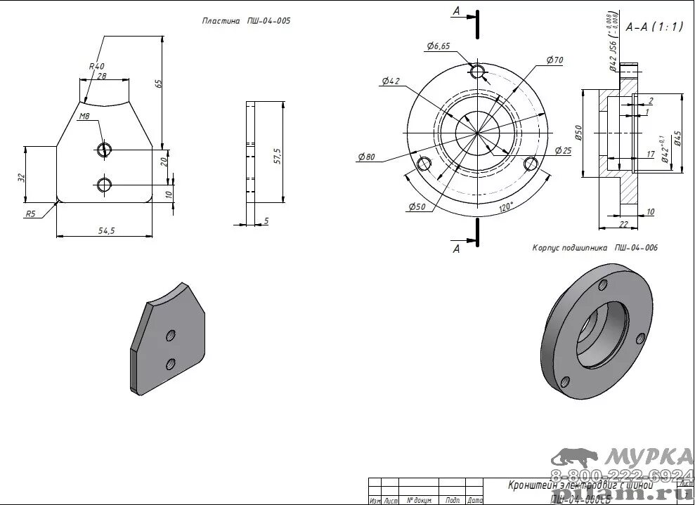
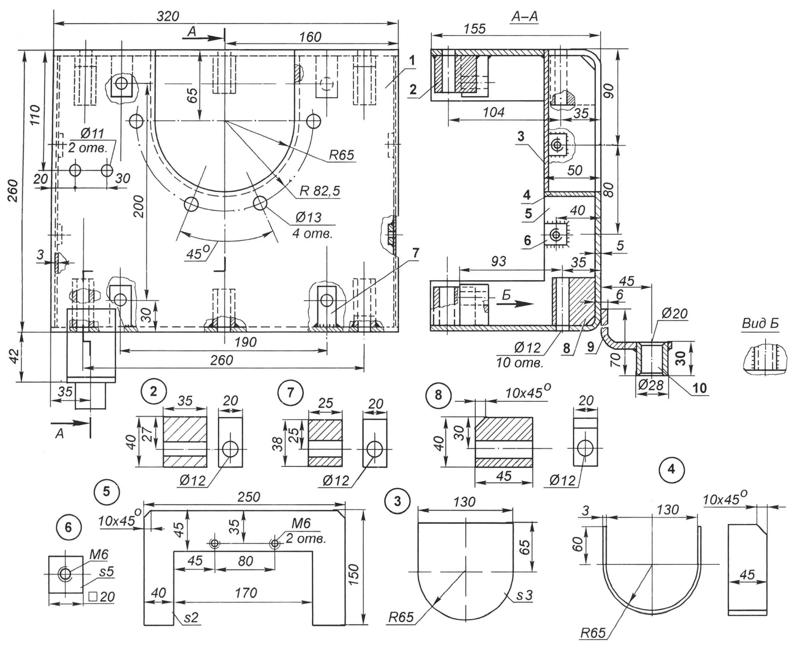
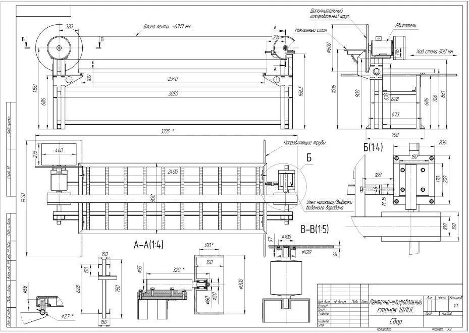
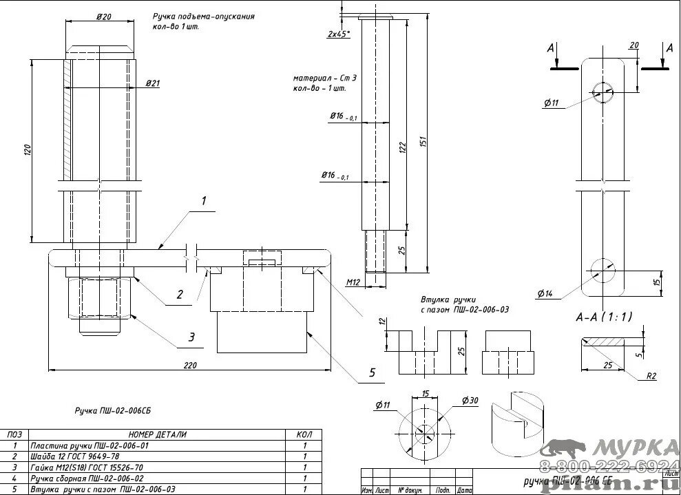
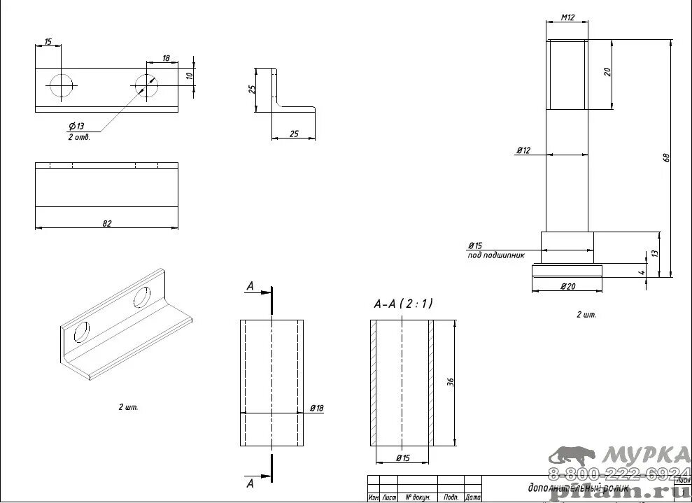
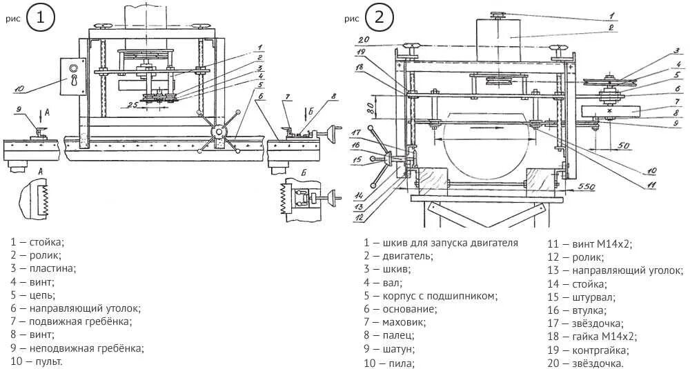
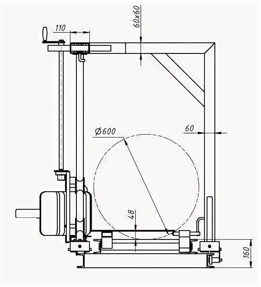
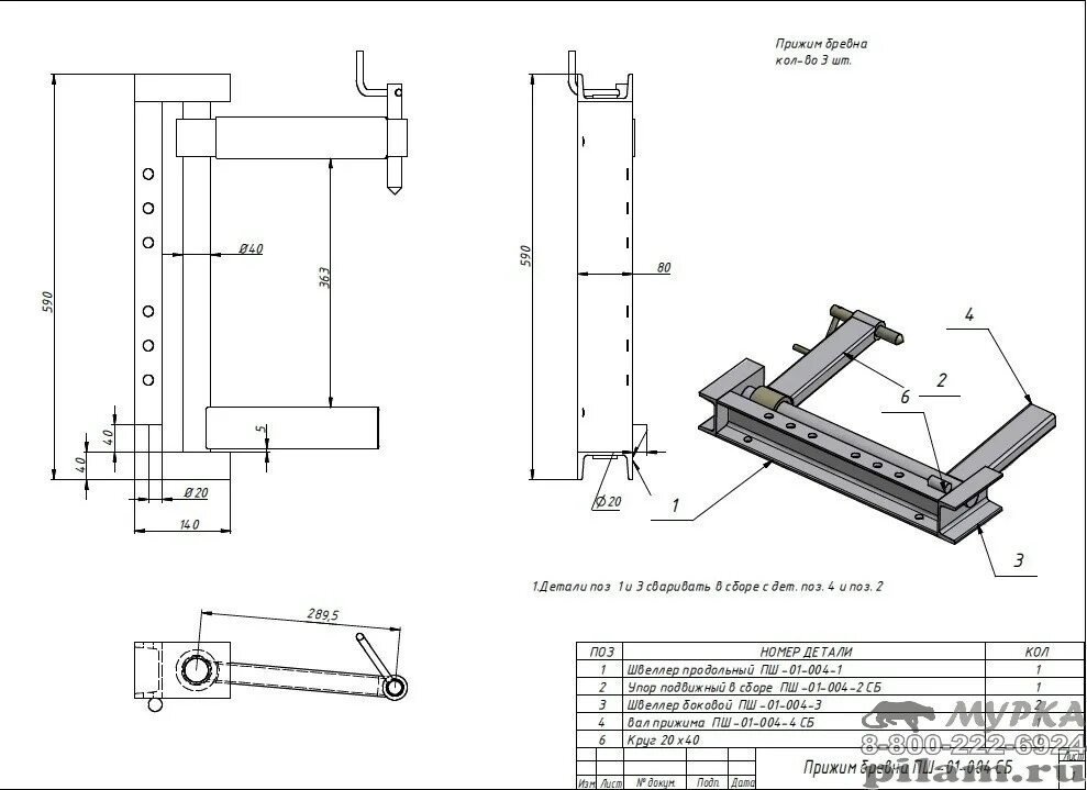
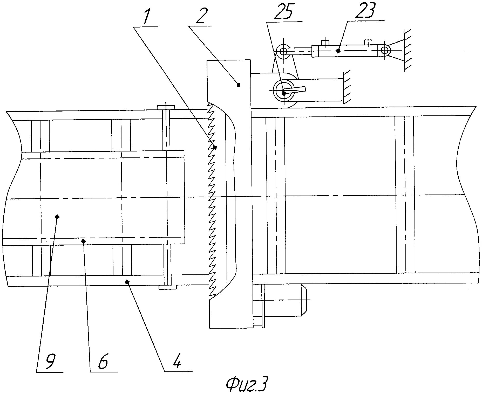
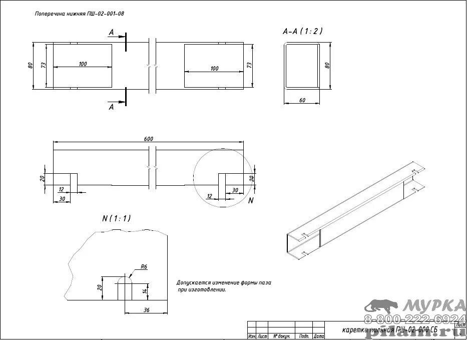
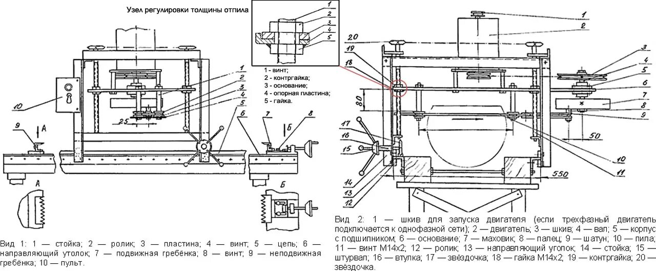
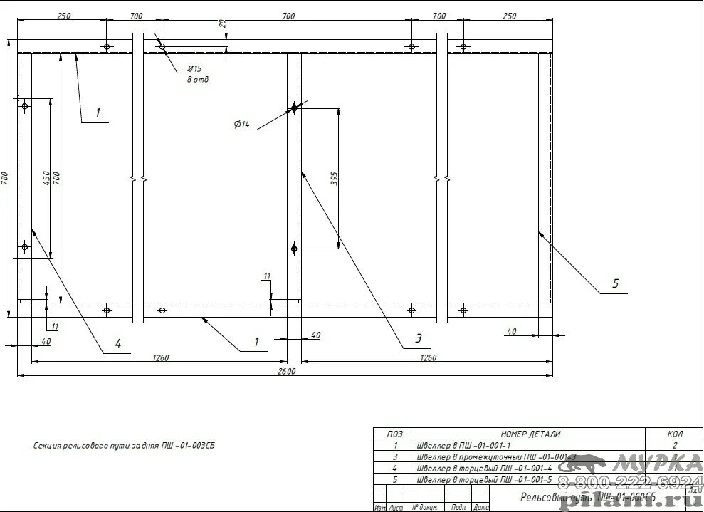
Ленточная пилорама чертежи размеры