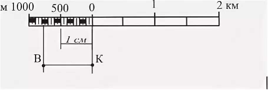
Линейный масштаб 1 25000