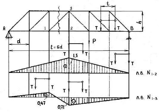
Линии влияния в ферме