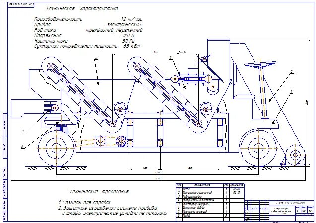
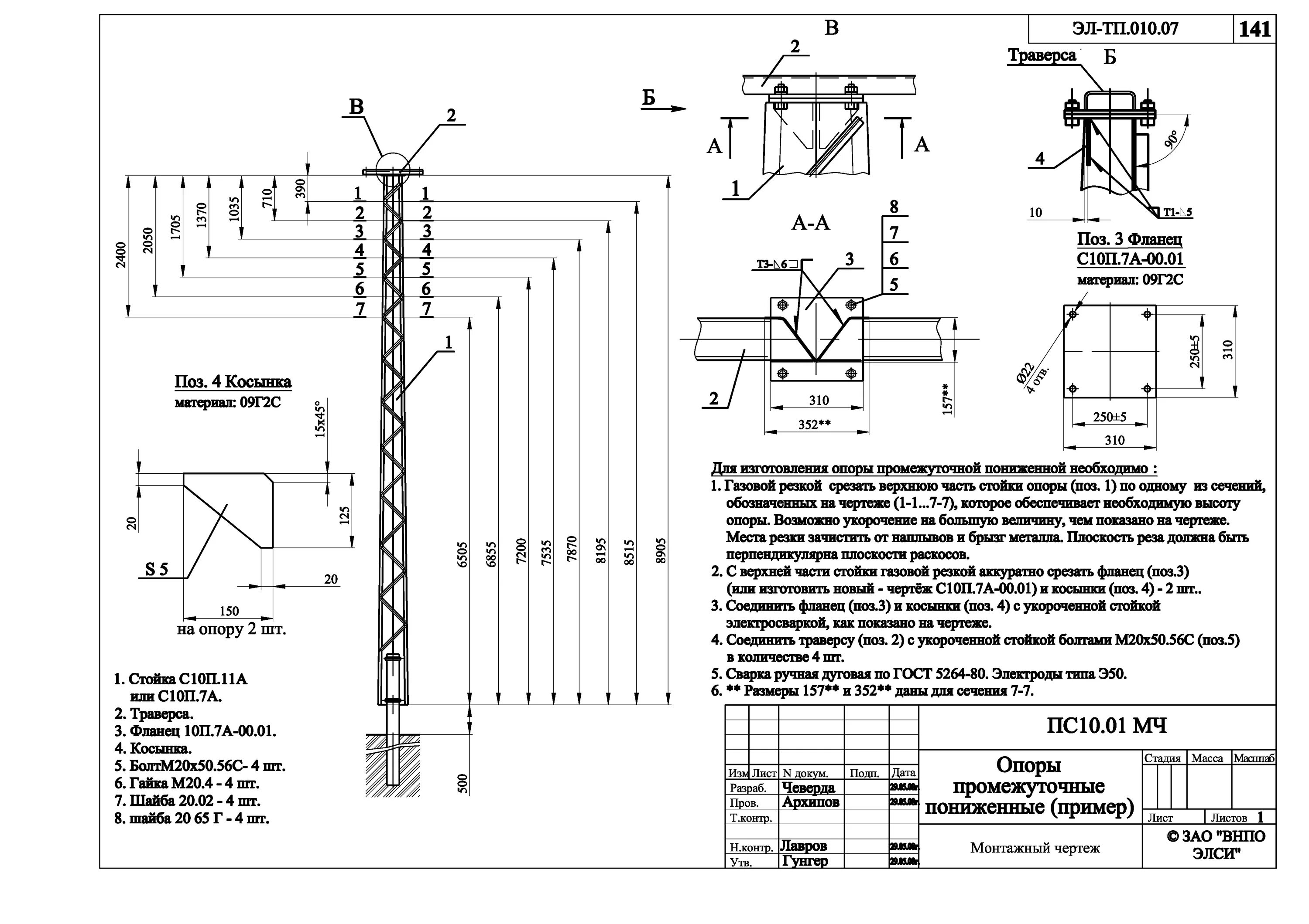
Линия пс 10