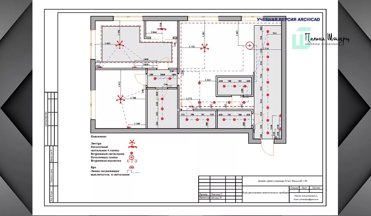
Люстра архикад