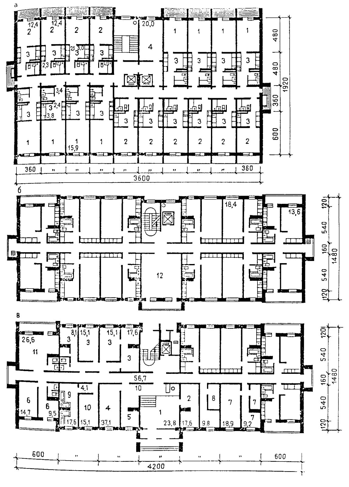
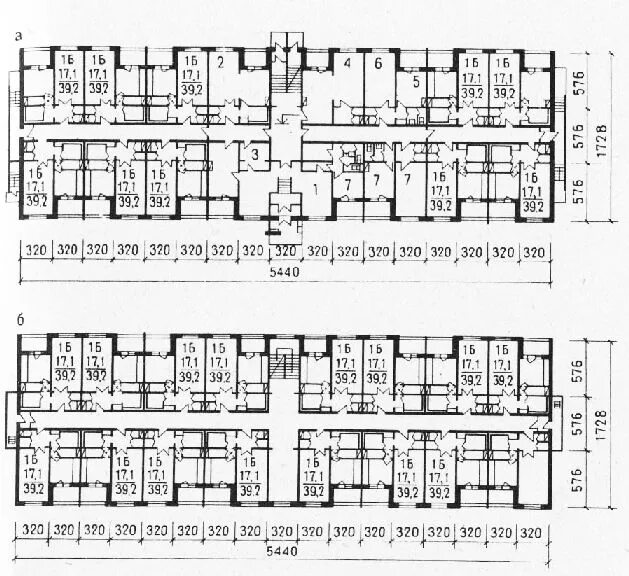
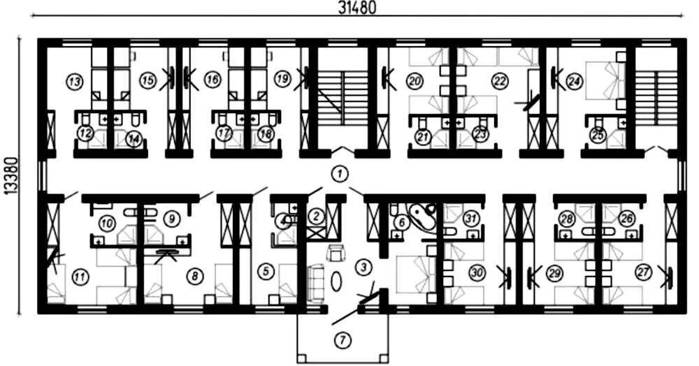
Многоквартирные жилые дома общежитие квартирного типа