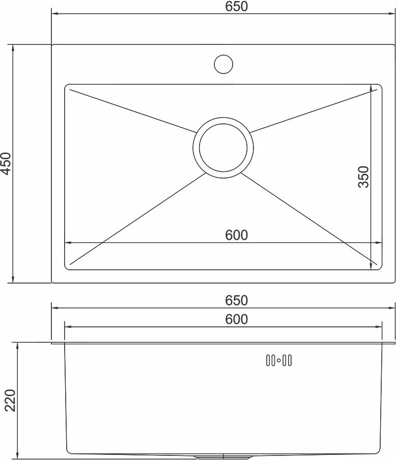
Мойка mixline pro 50x50