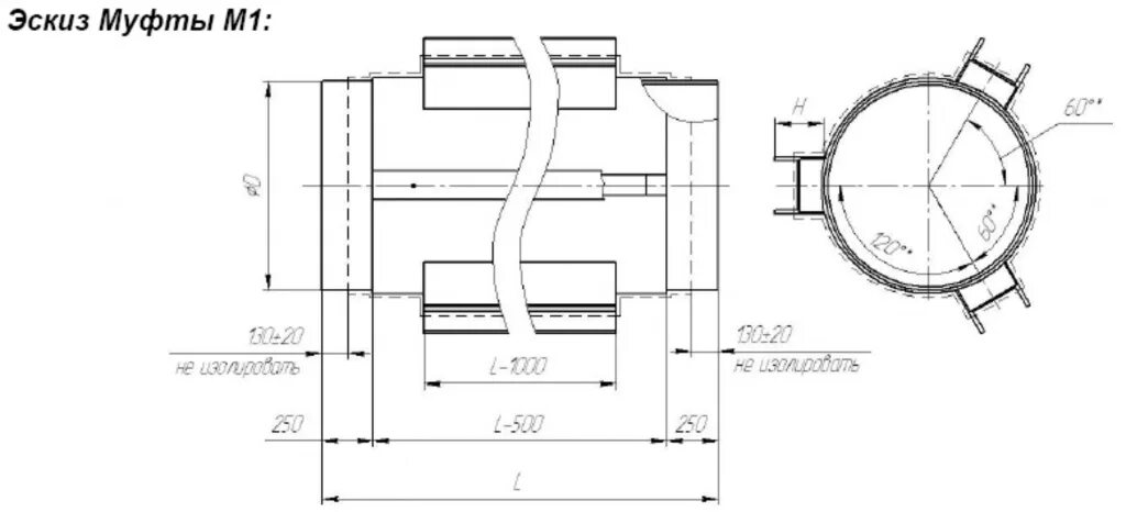
Муфта м 2