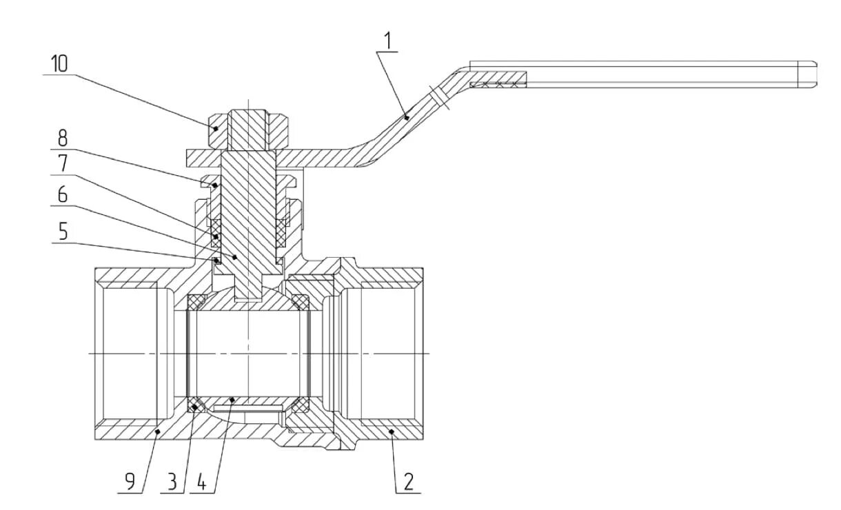
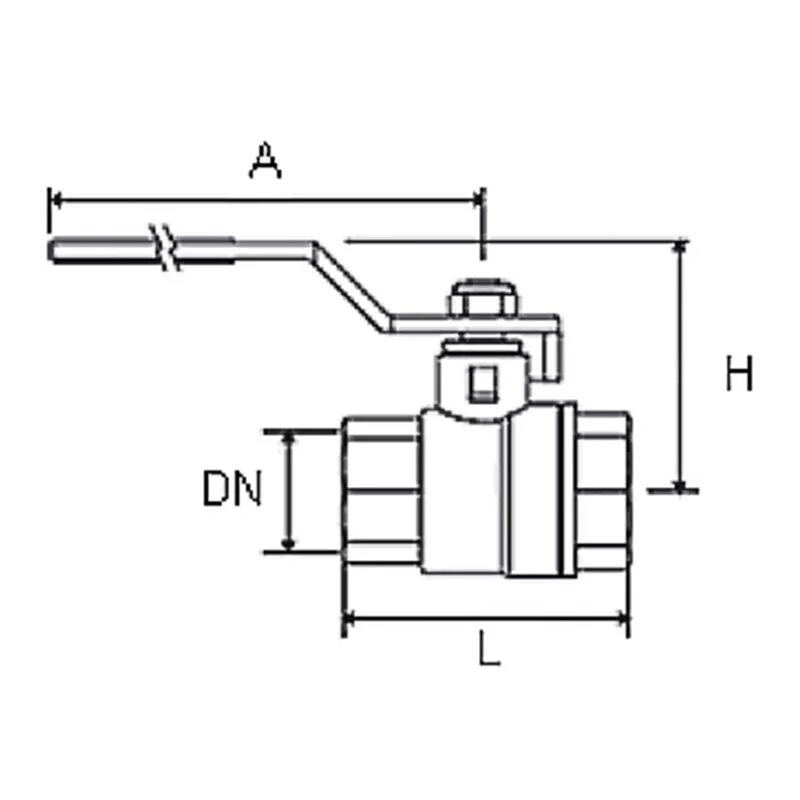
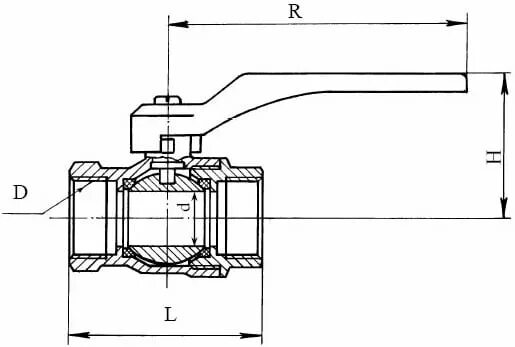
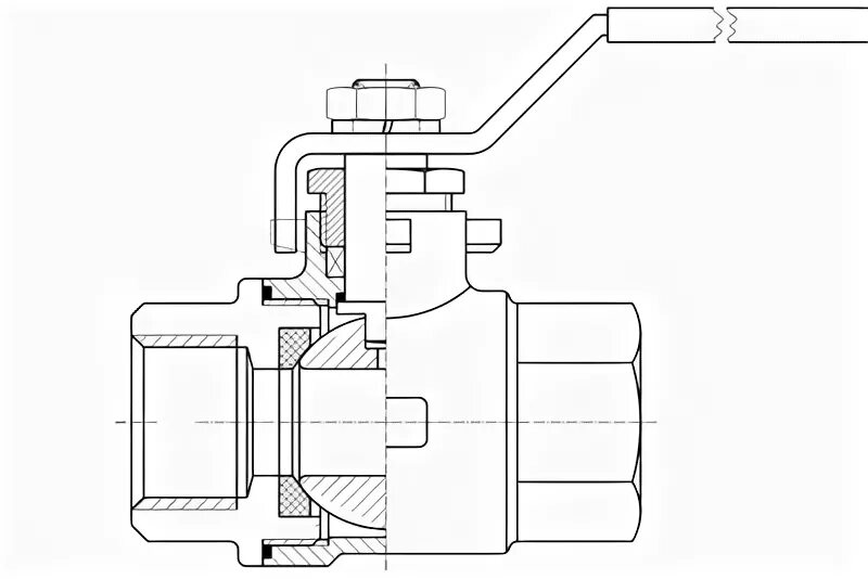
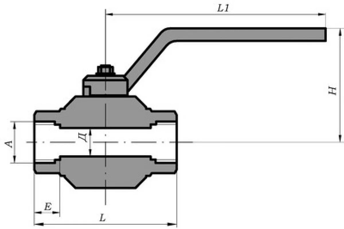
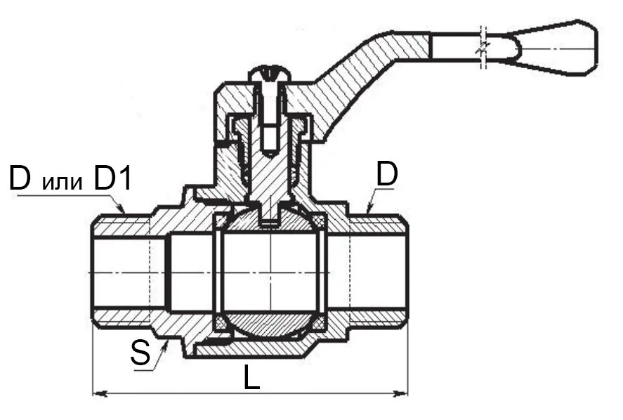
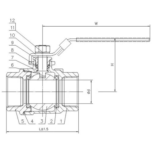
Муфтовое соединение крана шарового