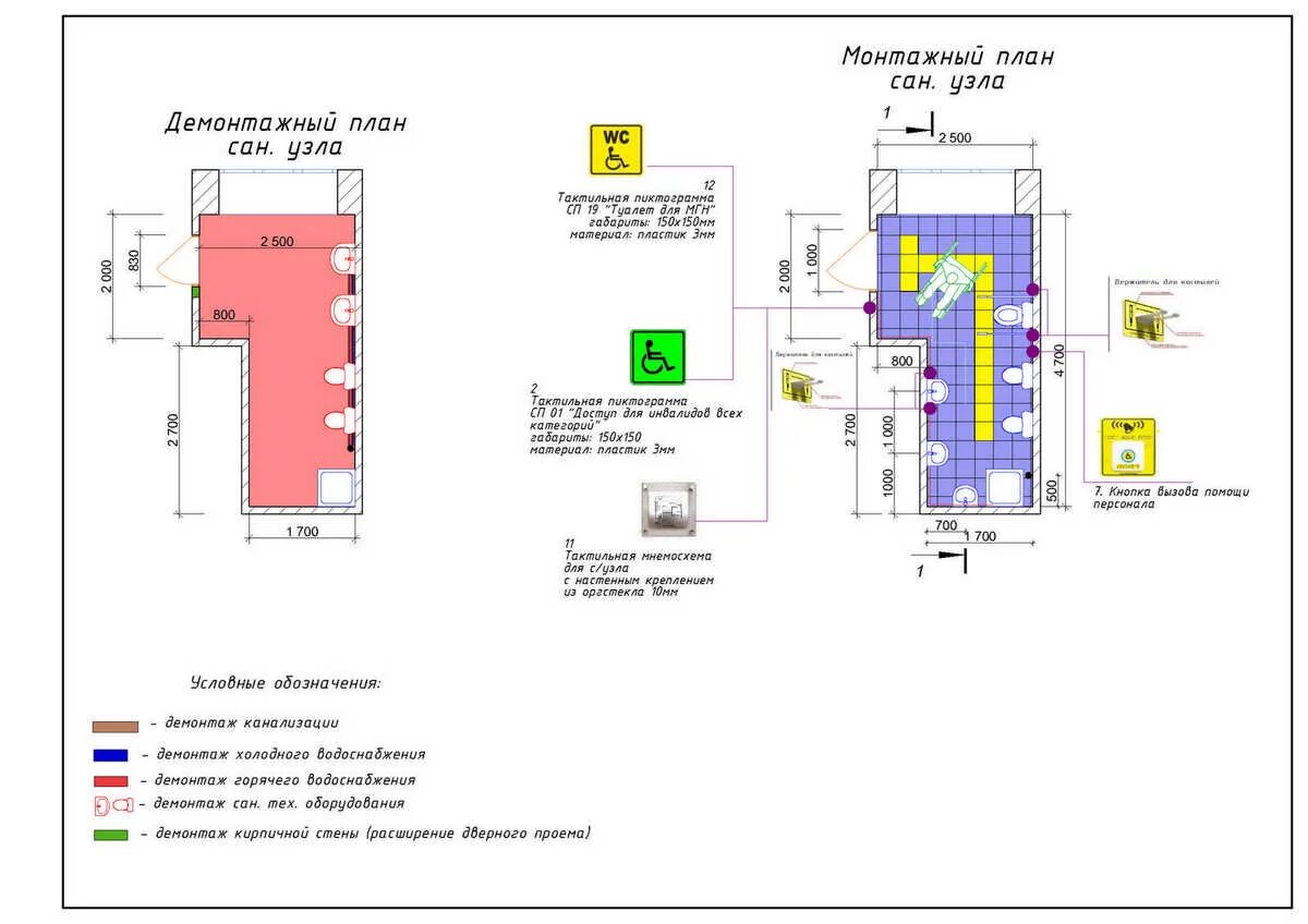
Обеспечение маломобильных групп населения