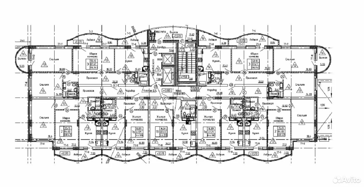
Олеко дундича 31к1 планировки