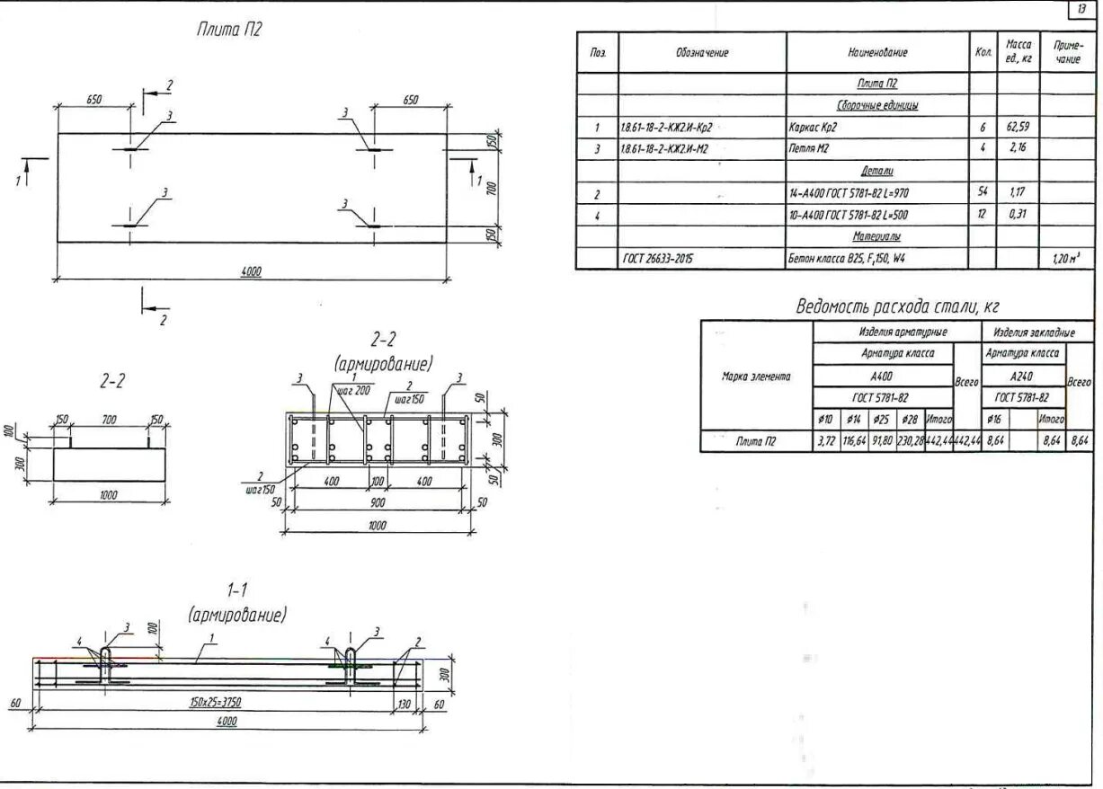
Оп 15 8