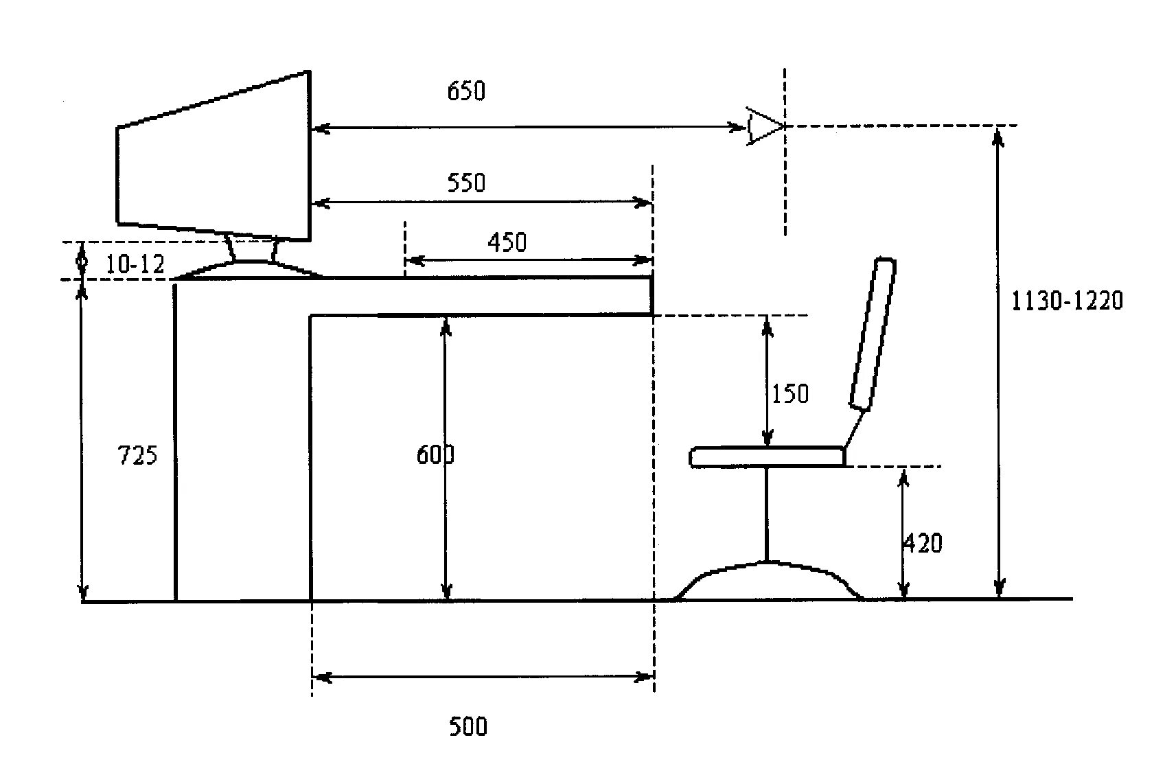
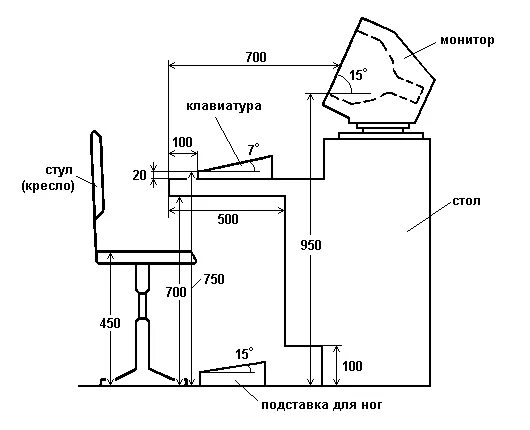
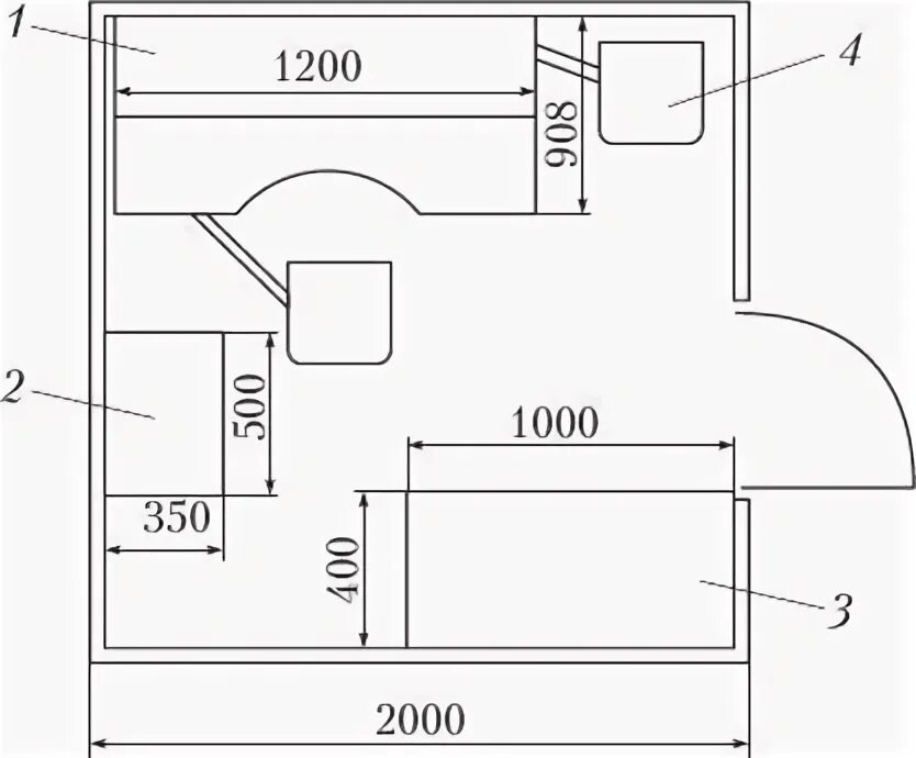
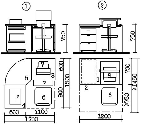
Описание рабочего места оператора