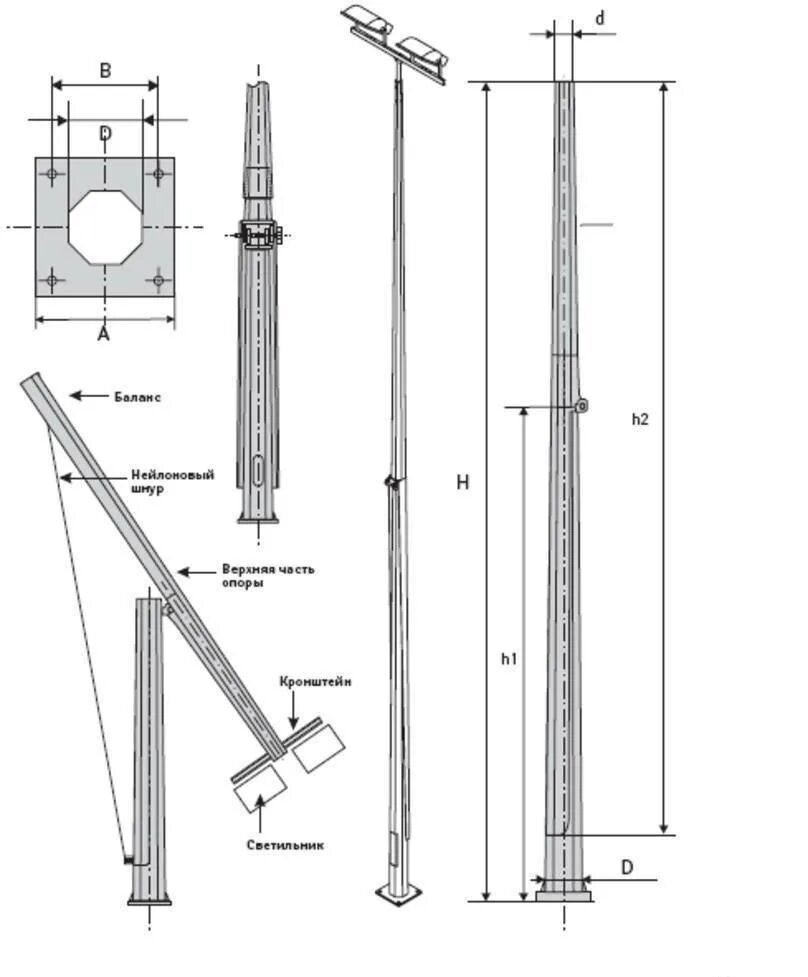
Опора универсал