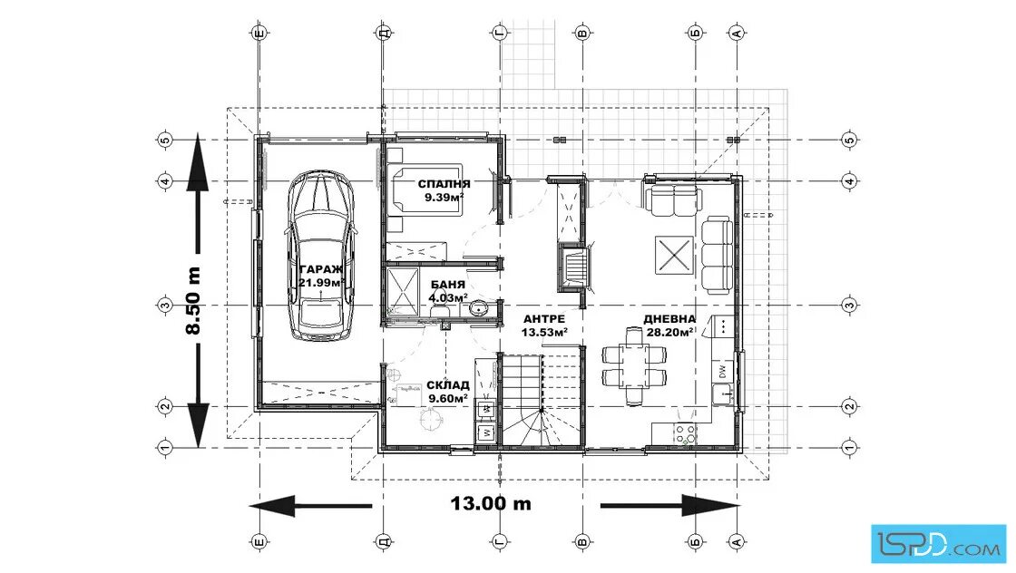
Орг проект