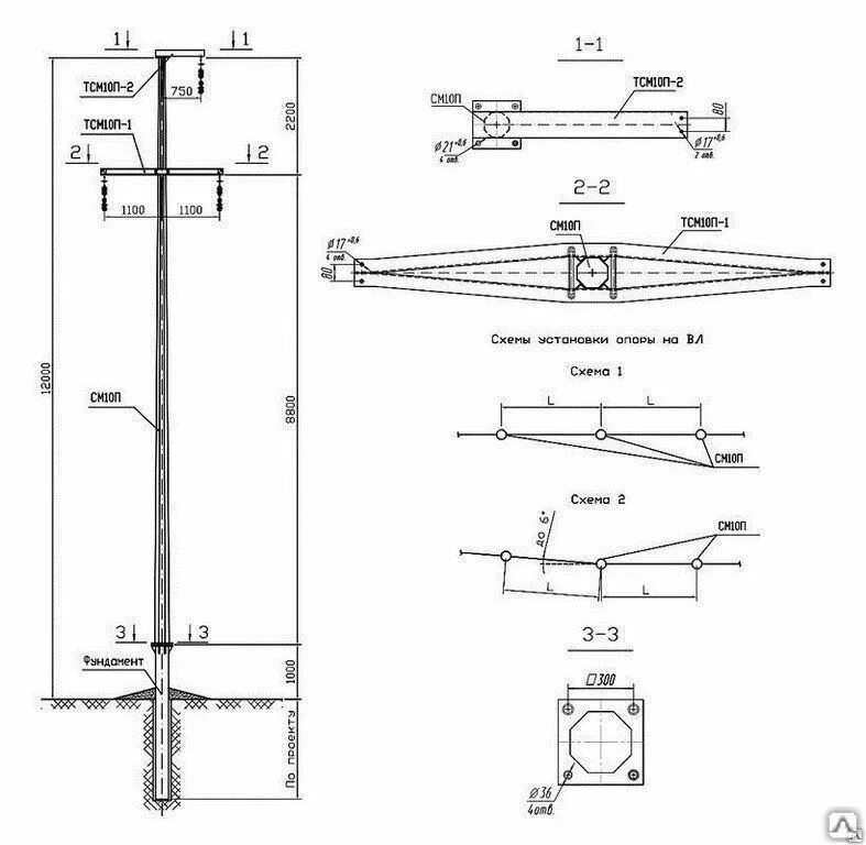
П 10 8