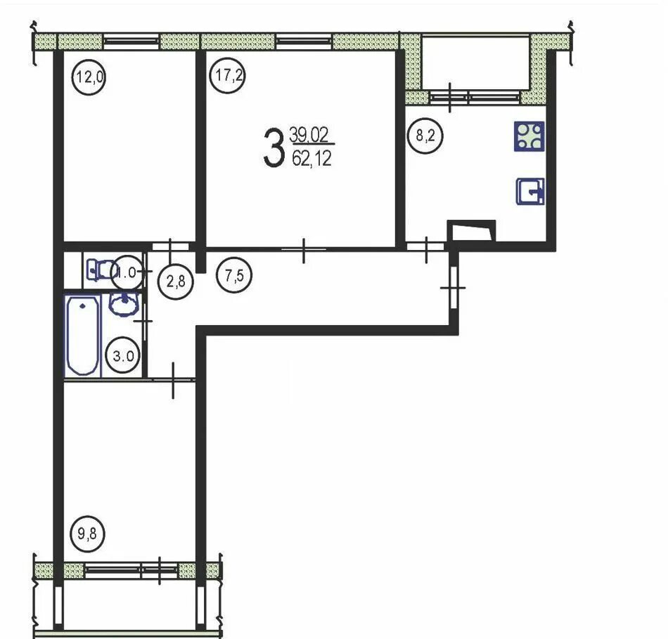
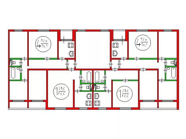
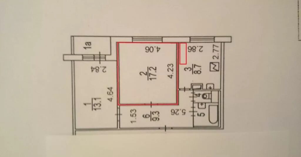
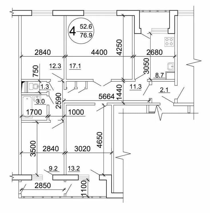
П 30 3 12