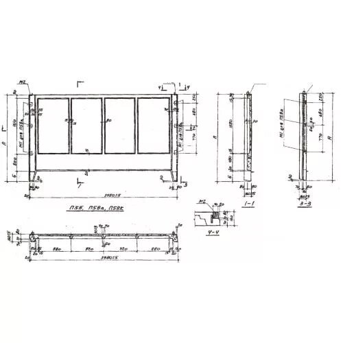
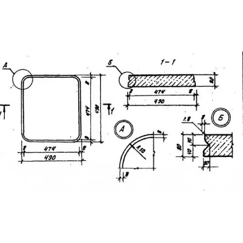
П 5.5 5