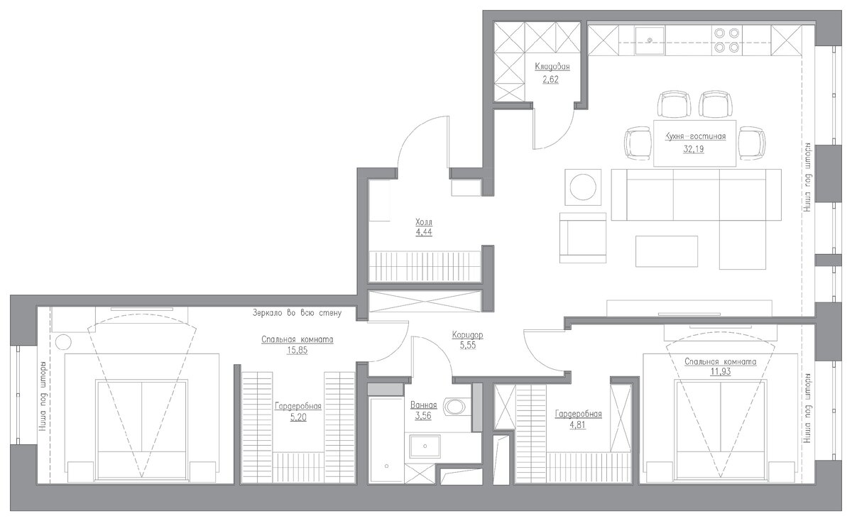
Перепланировка с апреля 2025