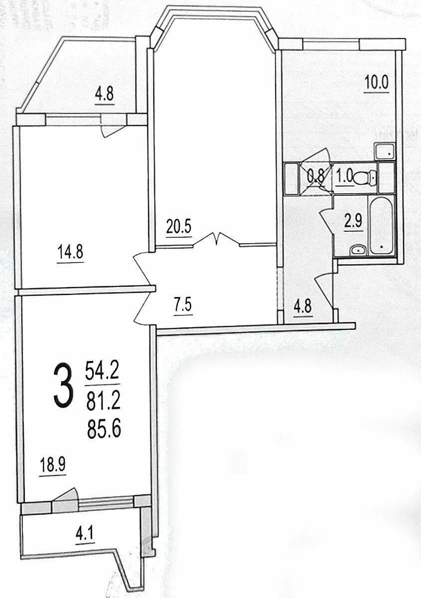
Пионерская 30 10