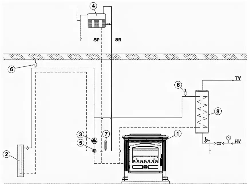
Пламен термо