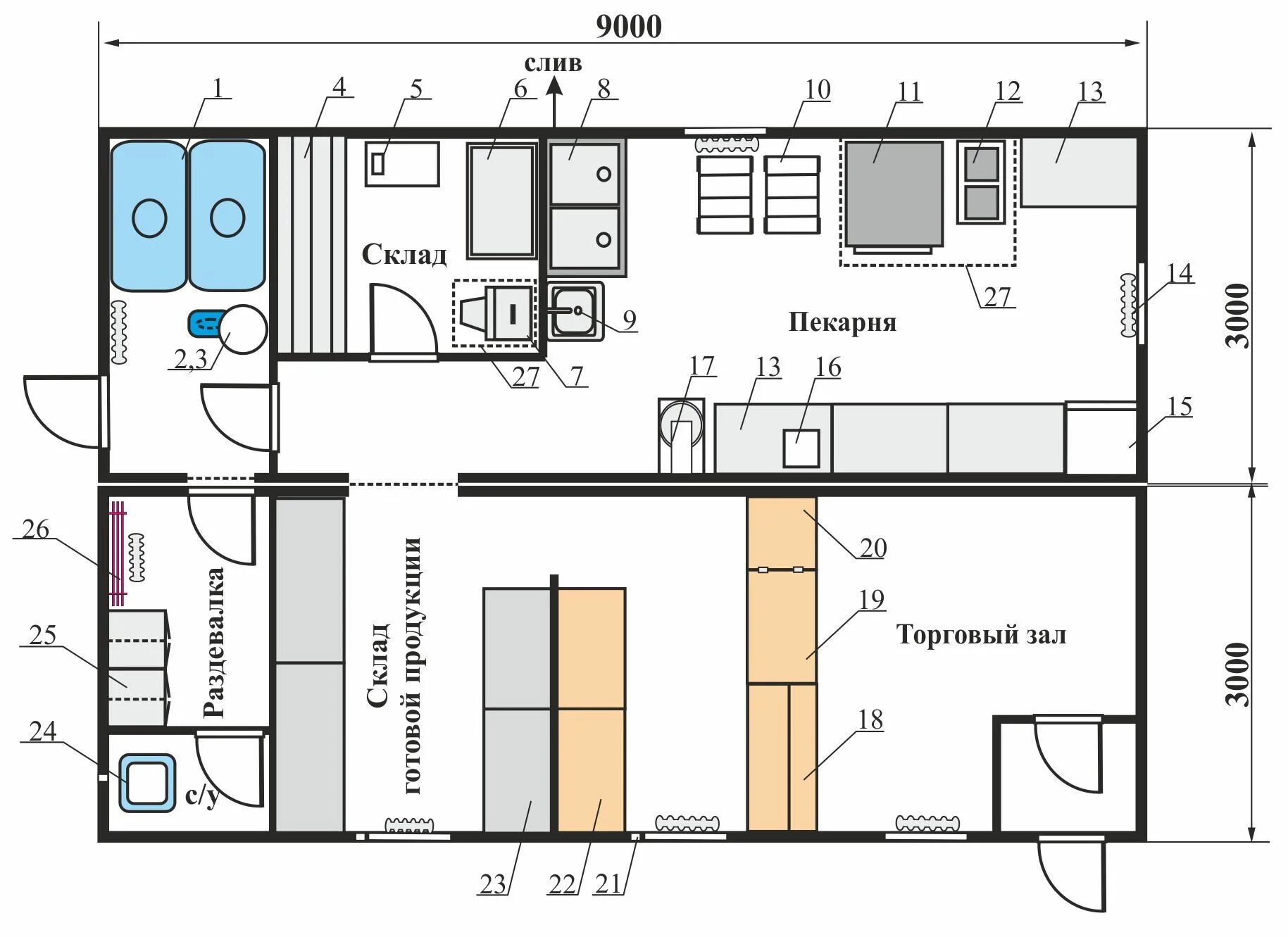
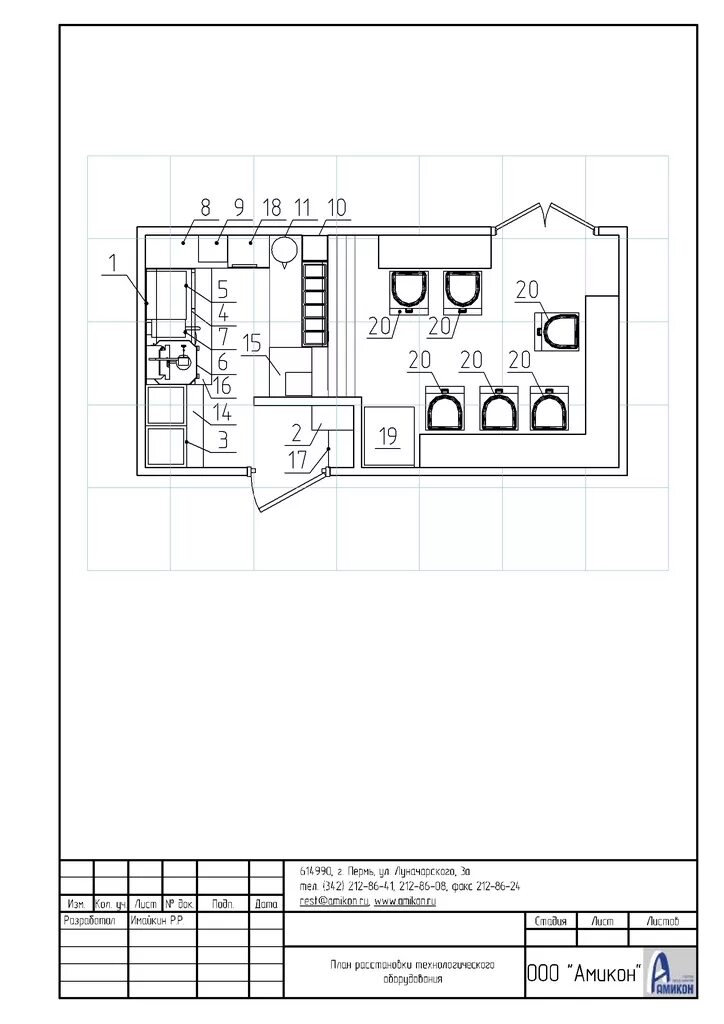
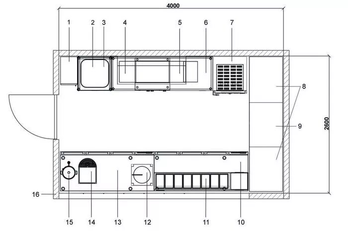
План фаст