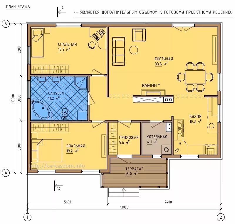
Планировка дома 10 4