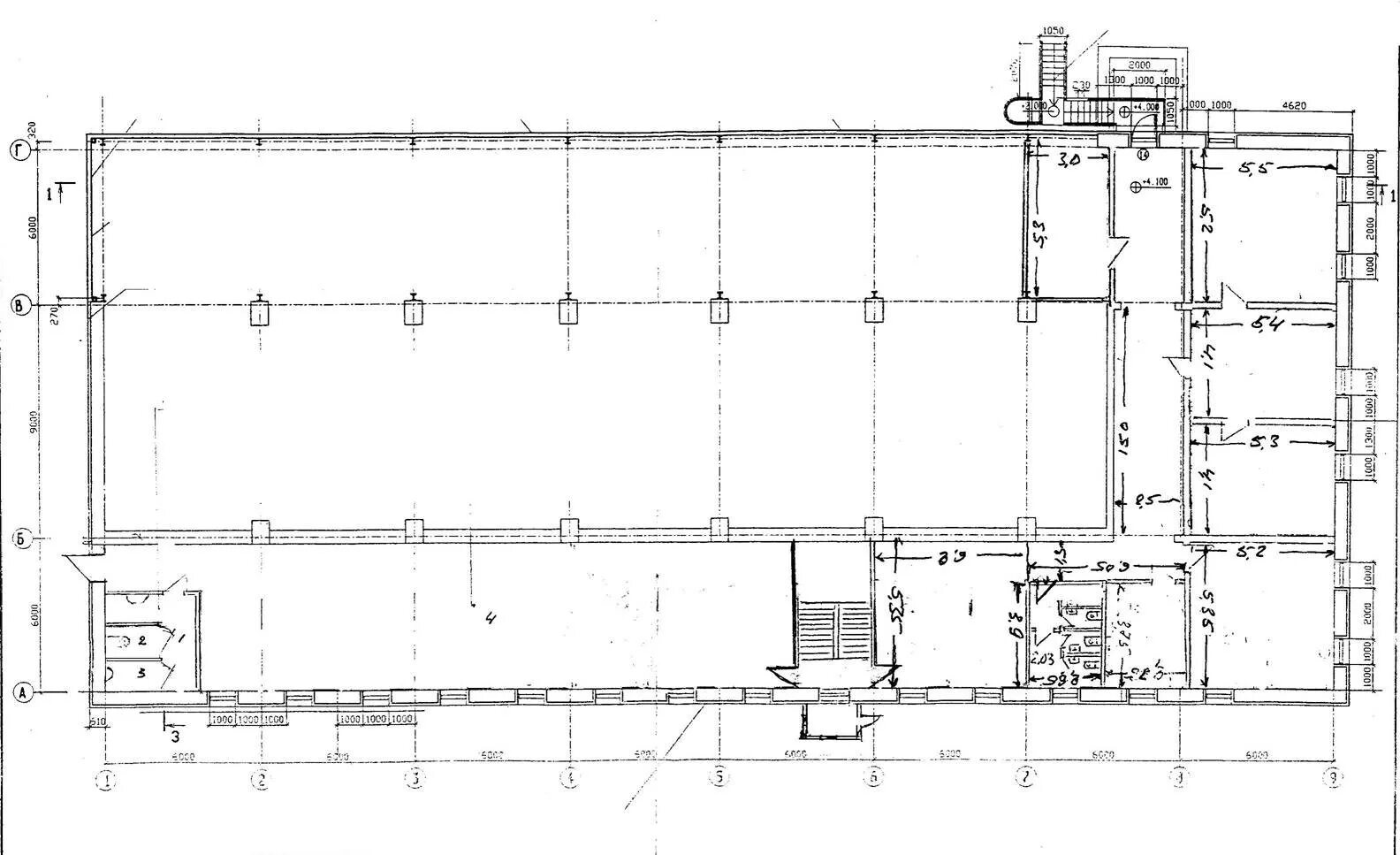
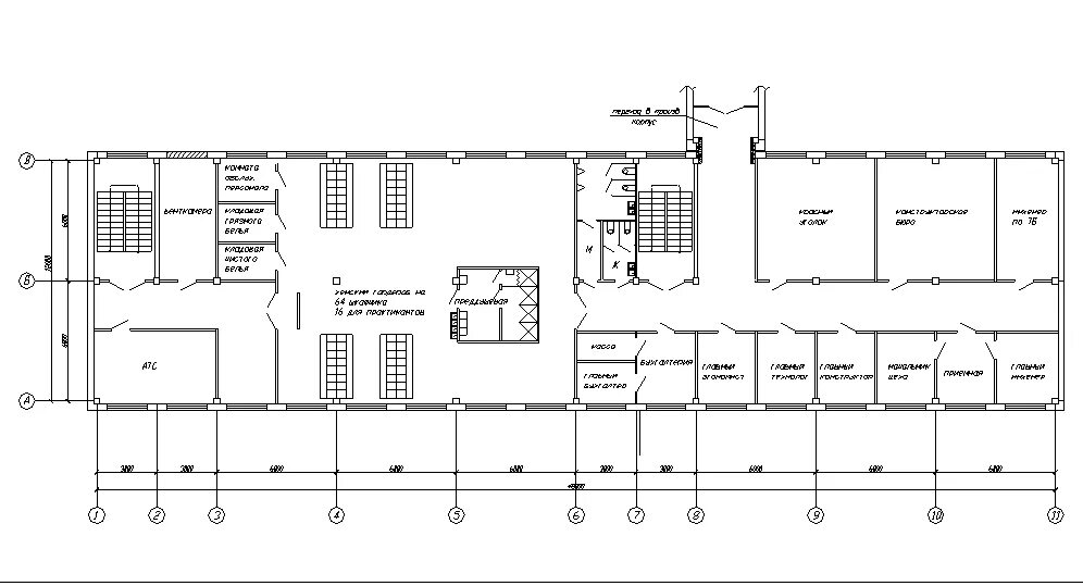
Планировка производственных помещений