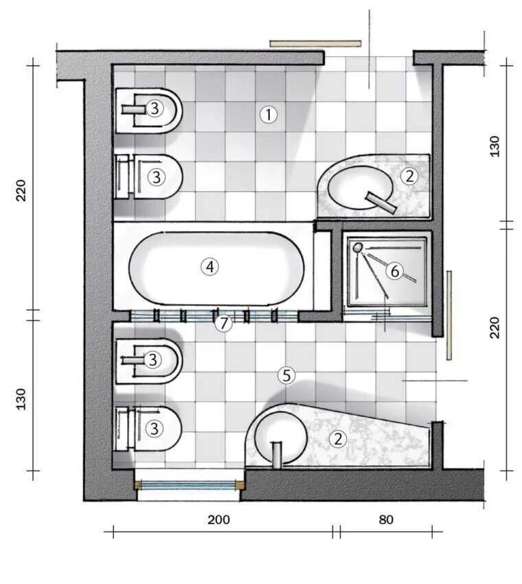
Планировка ванной комнаты в частном доме