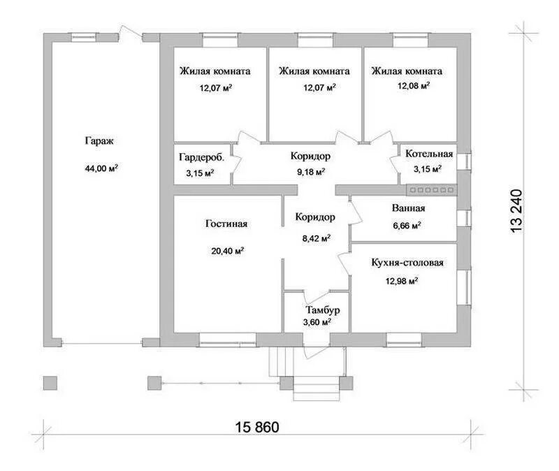
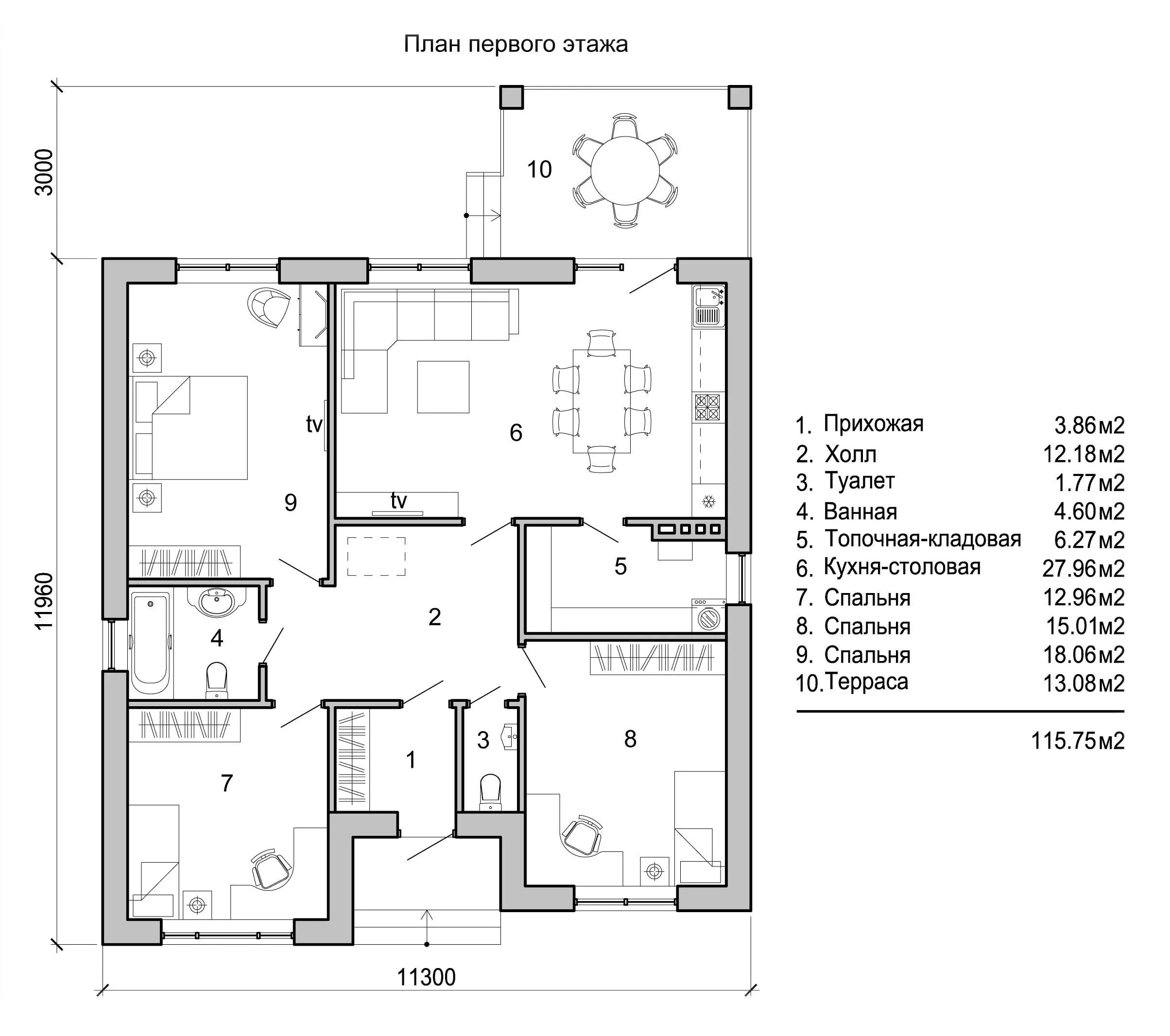
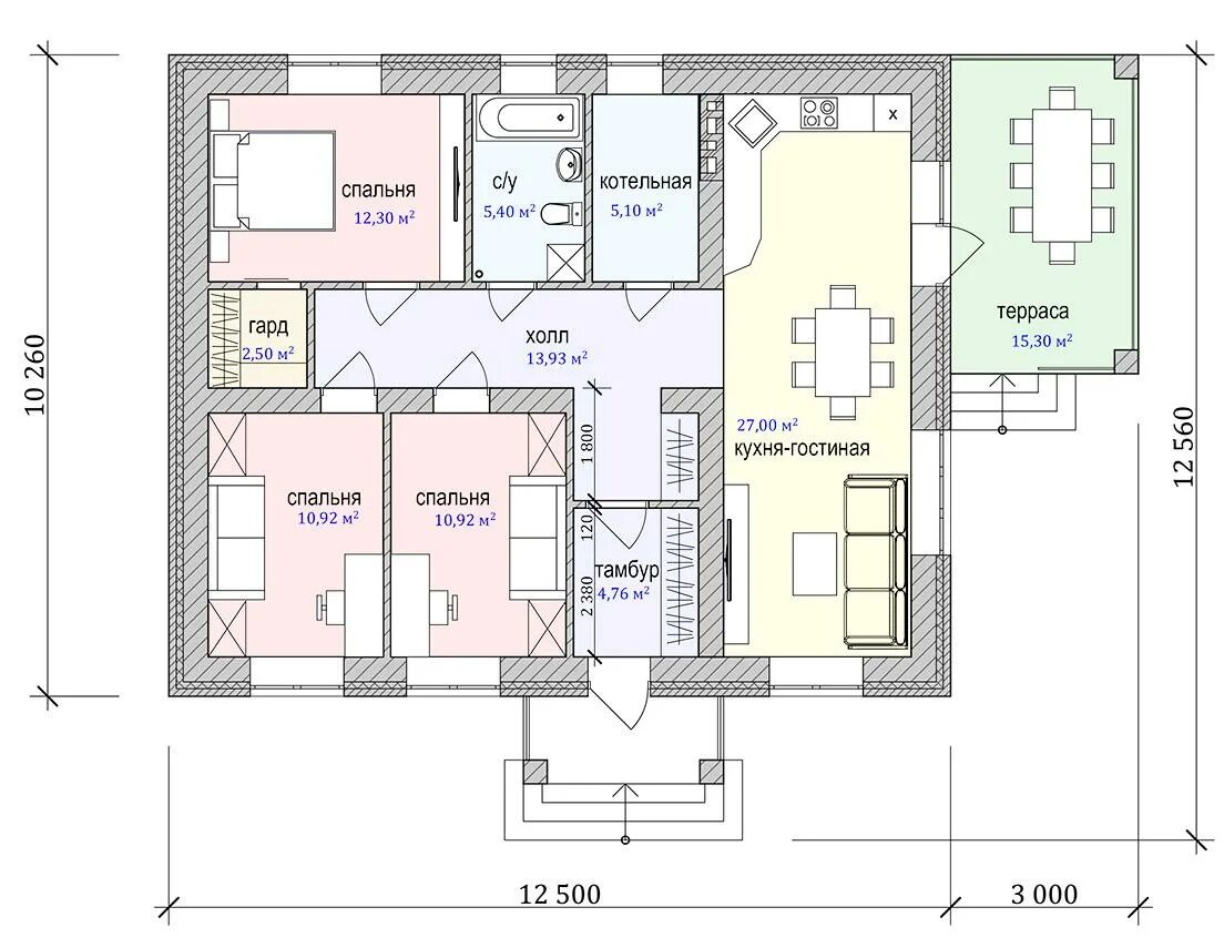
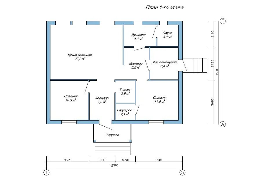
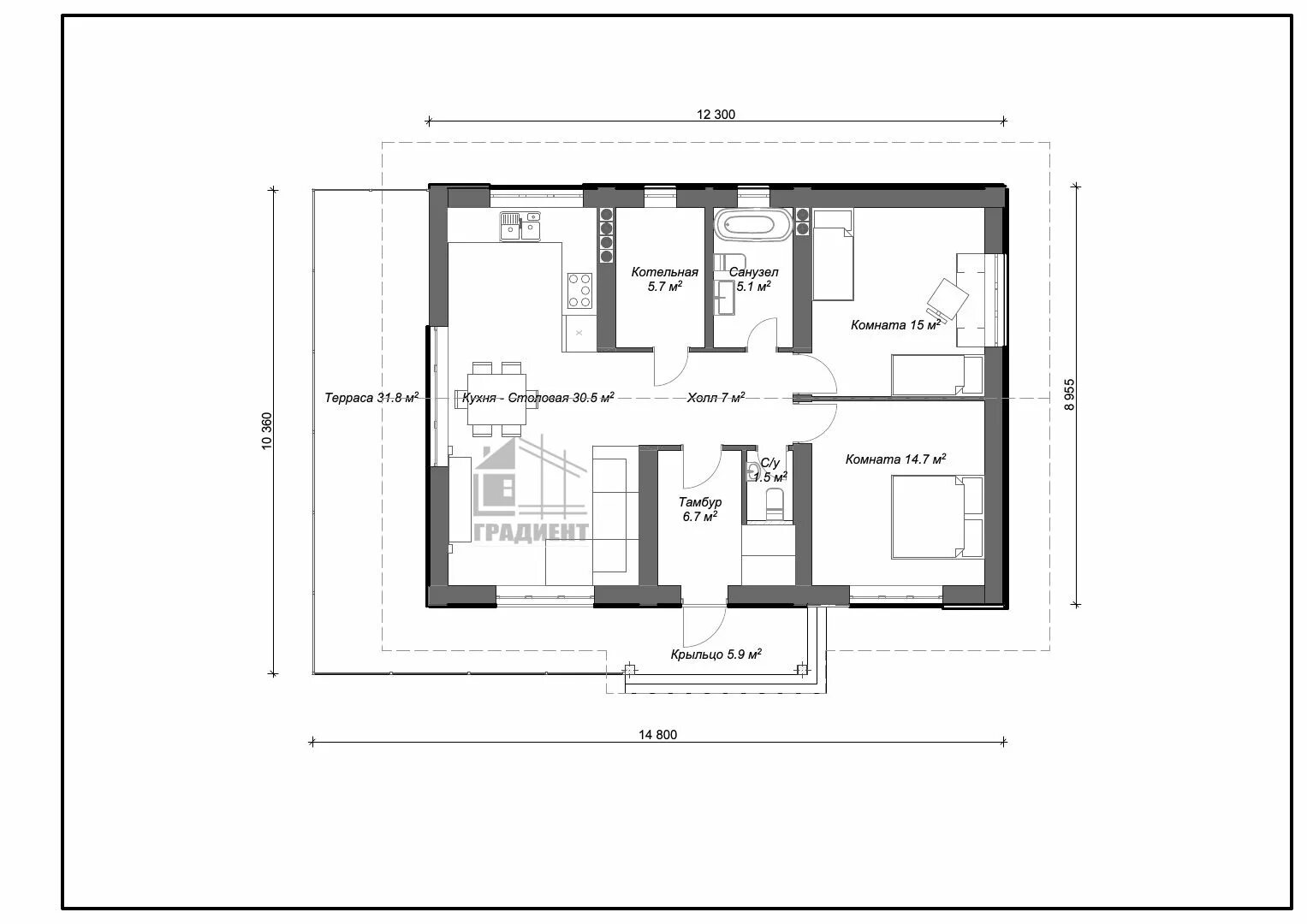
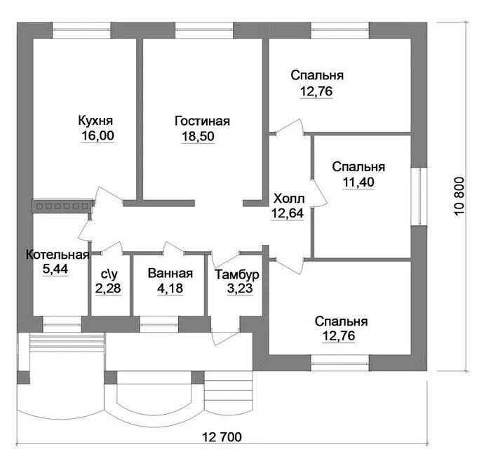
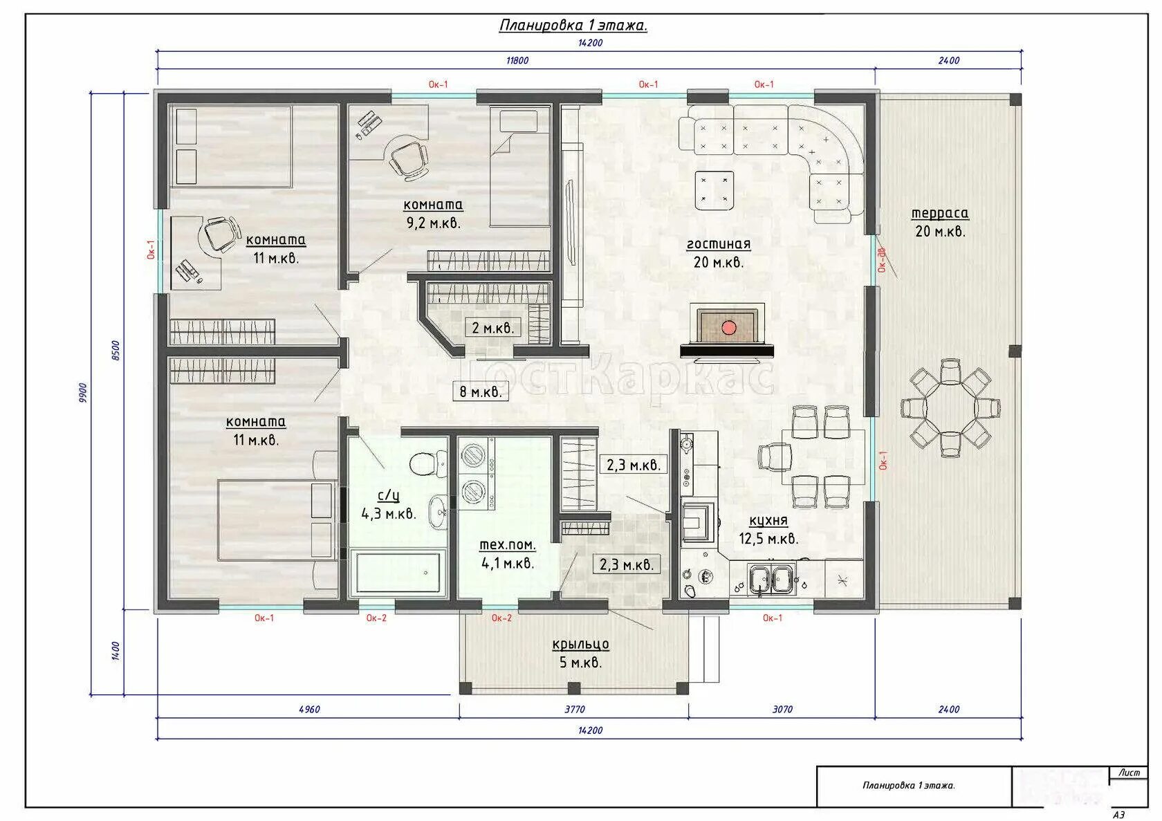
Планы одноэтажных домов с котельными