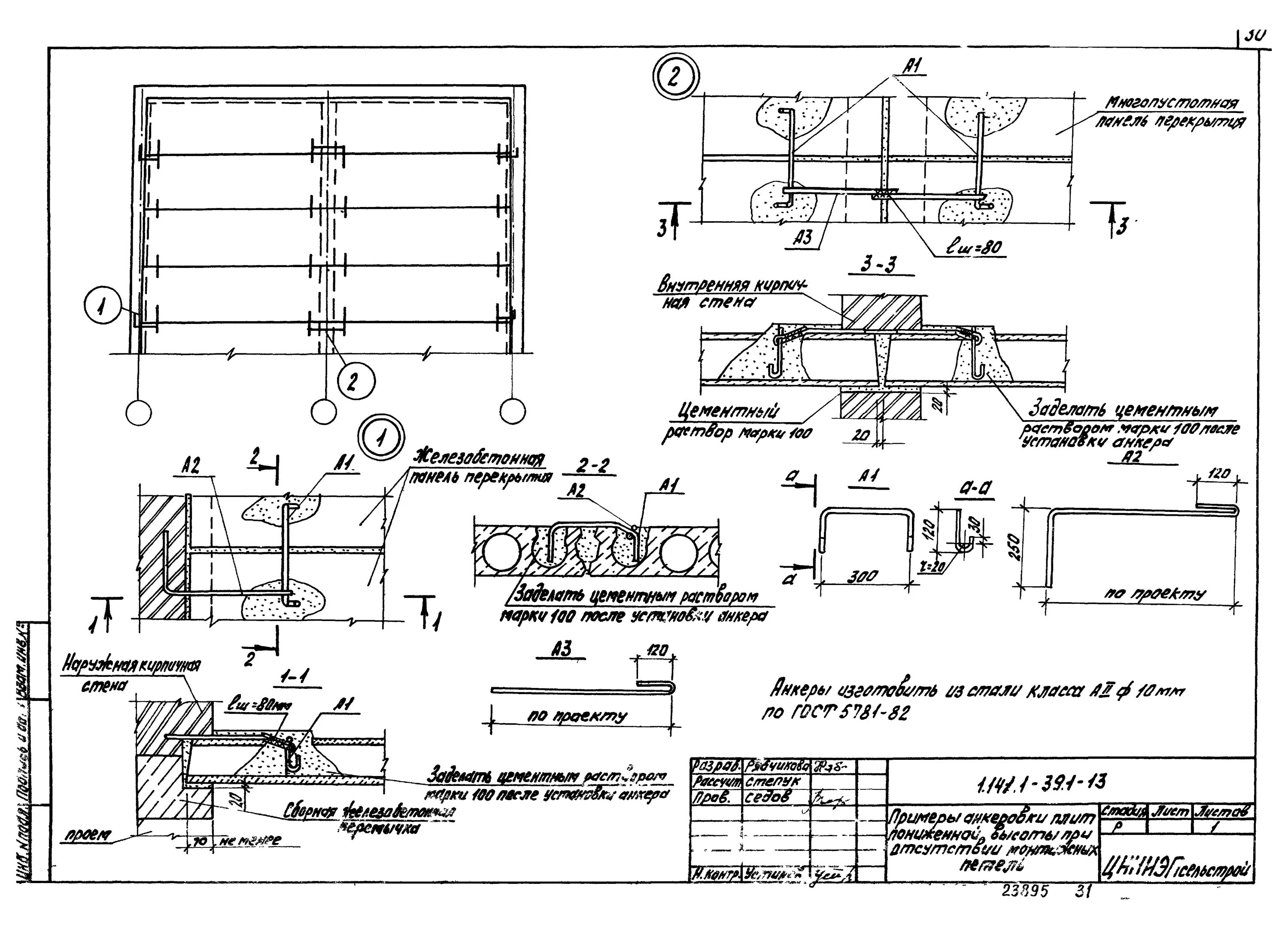
Плита без петель