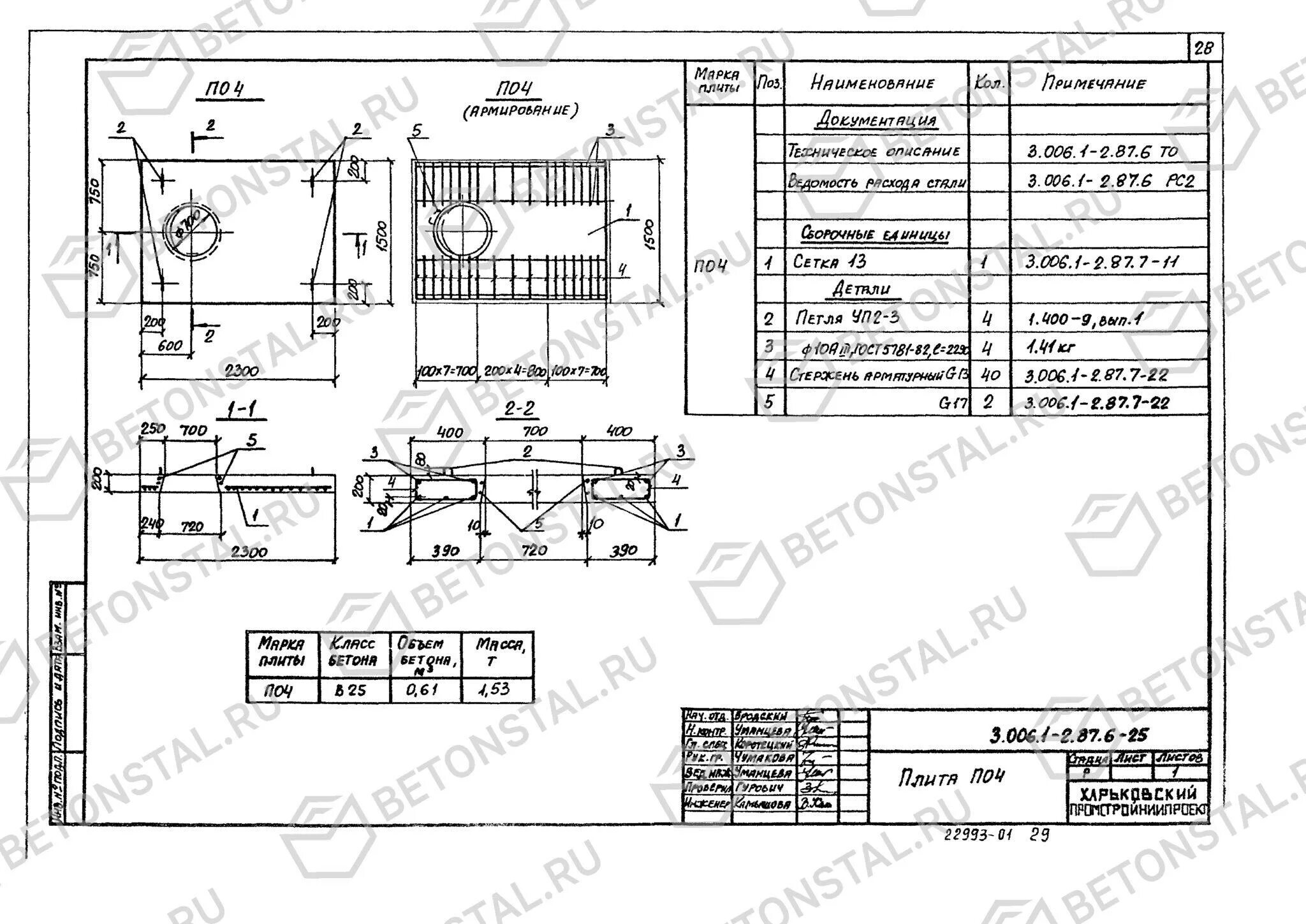
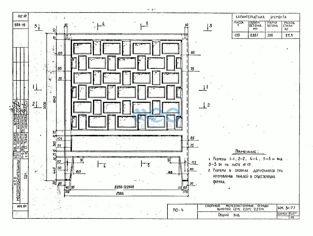
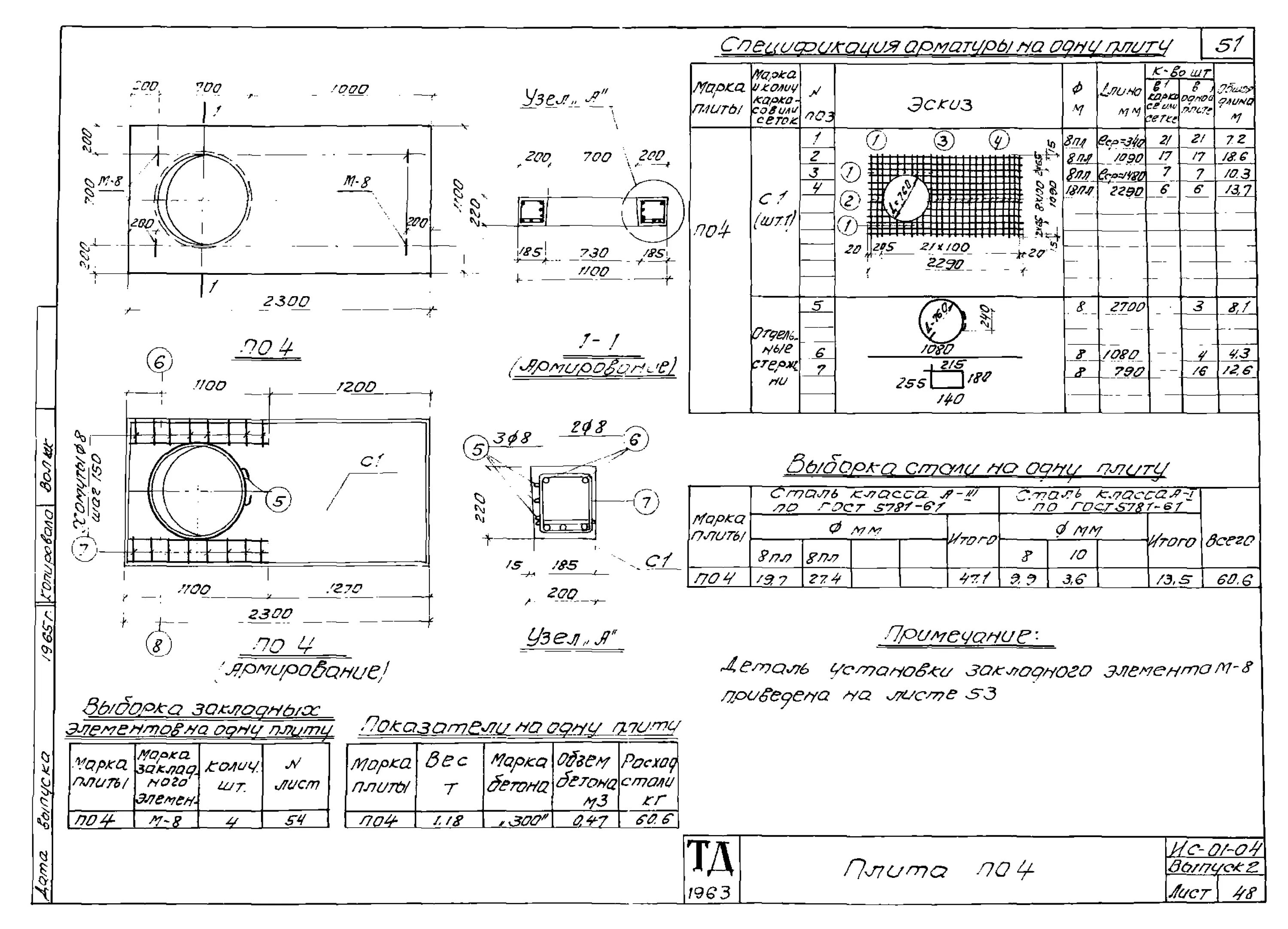
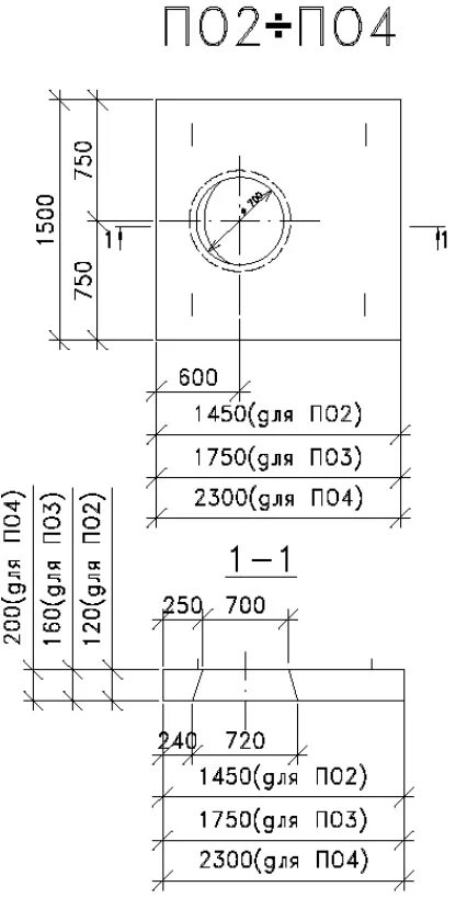
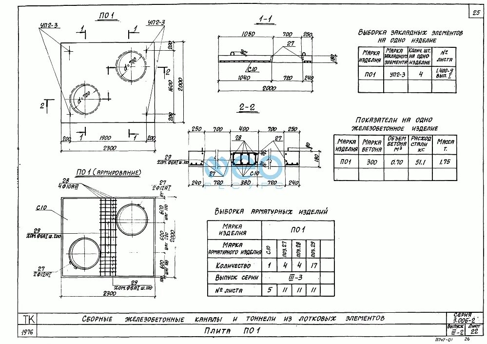
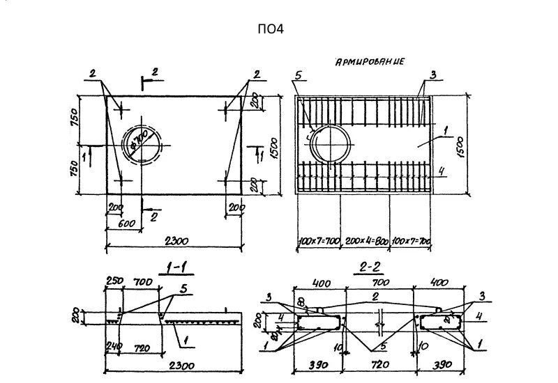
Плита по 4