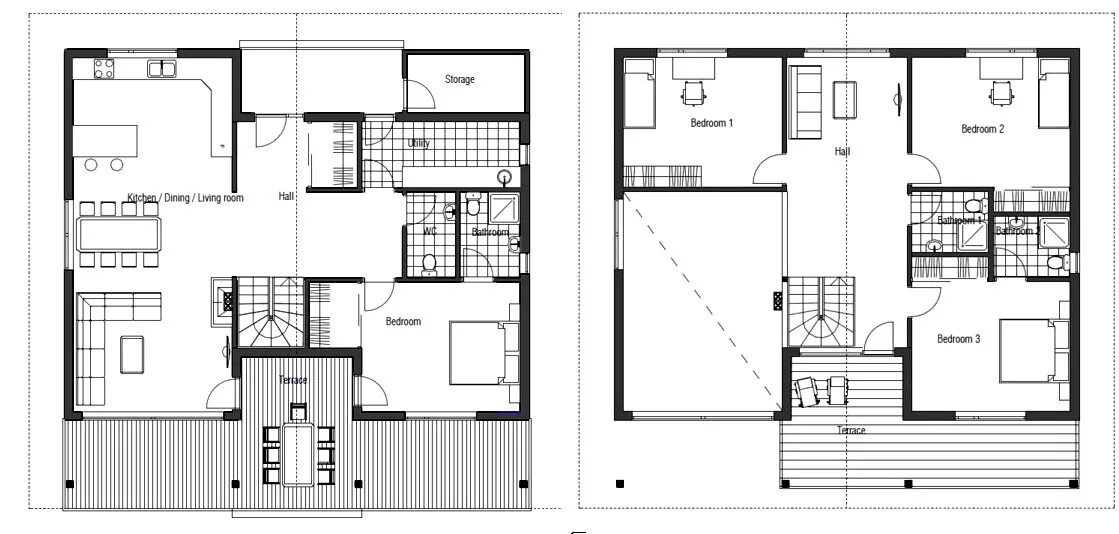
Площадь 180 квадратных метров