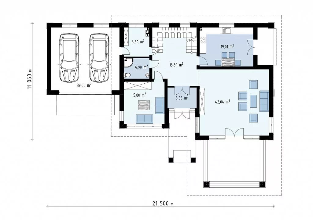
Площадь 250 м2