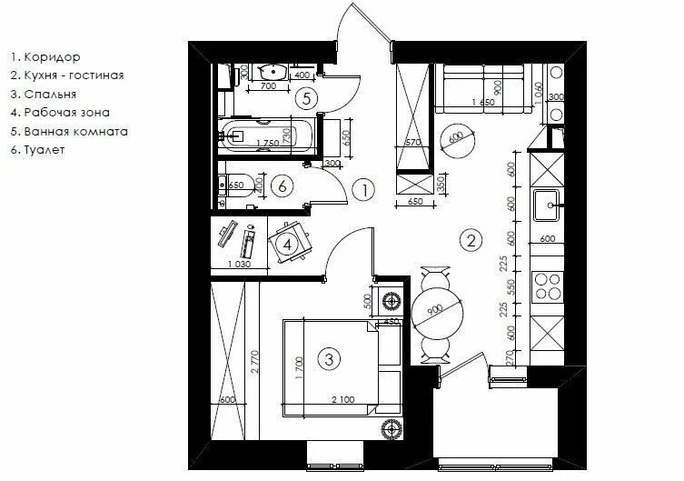
Площадь 35 квадратных размеры