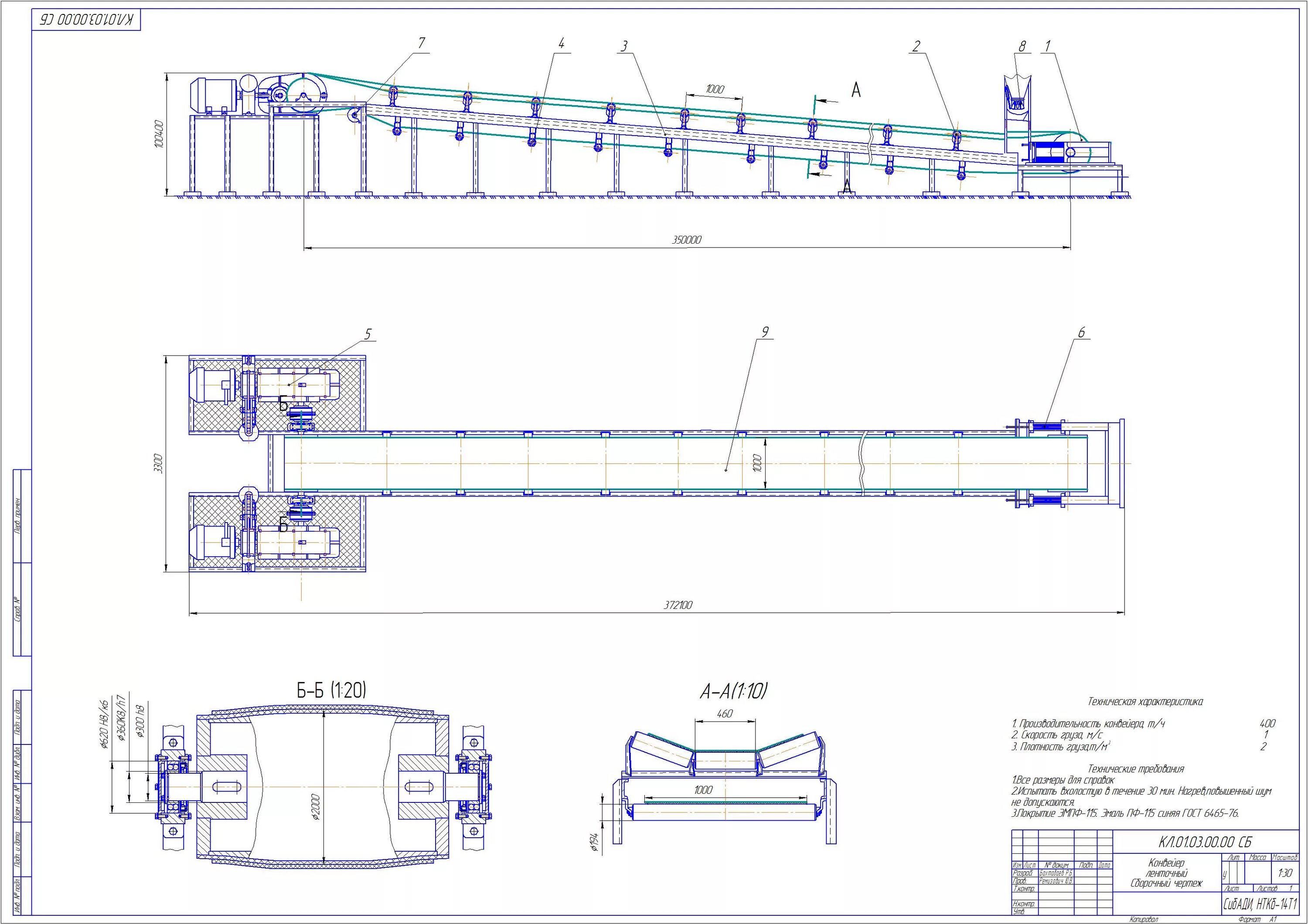
Площадь конвейера