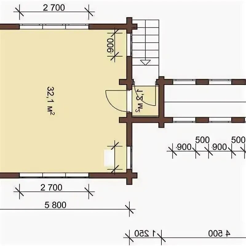
Площадью 33 1 м