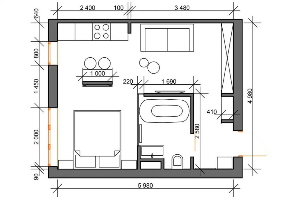
Площадью 4 8 кв м