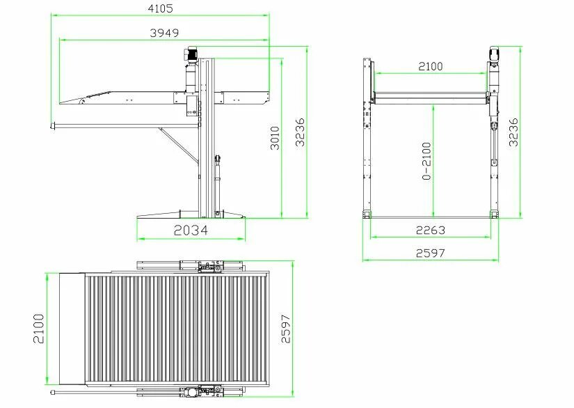
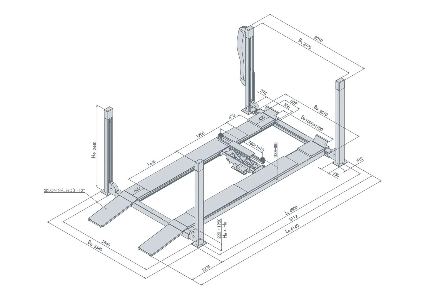
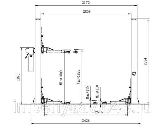
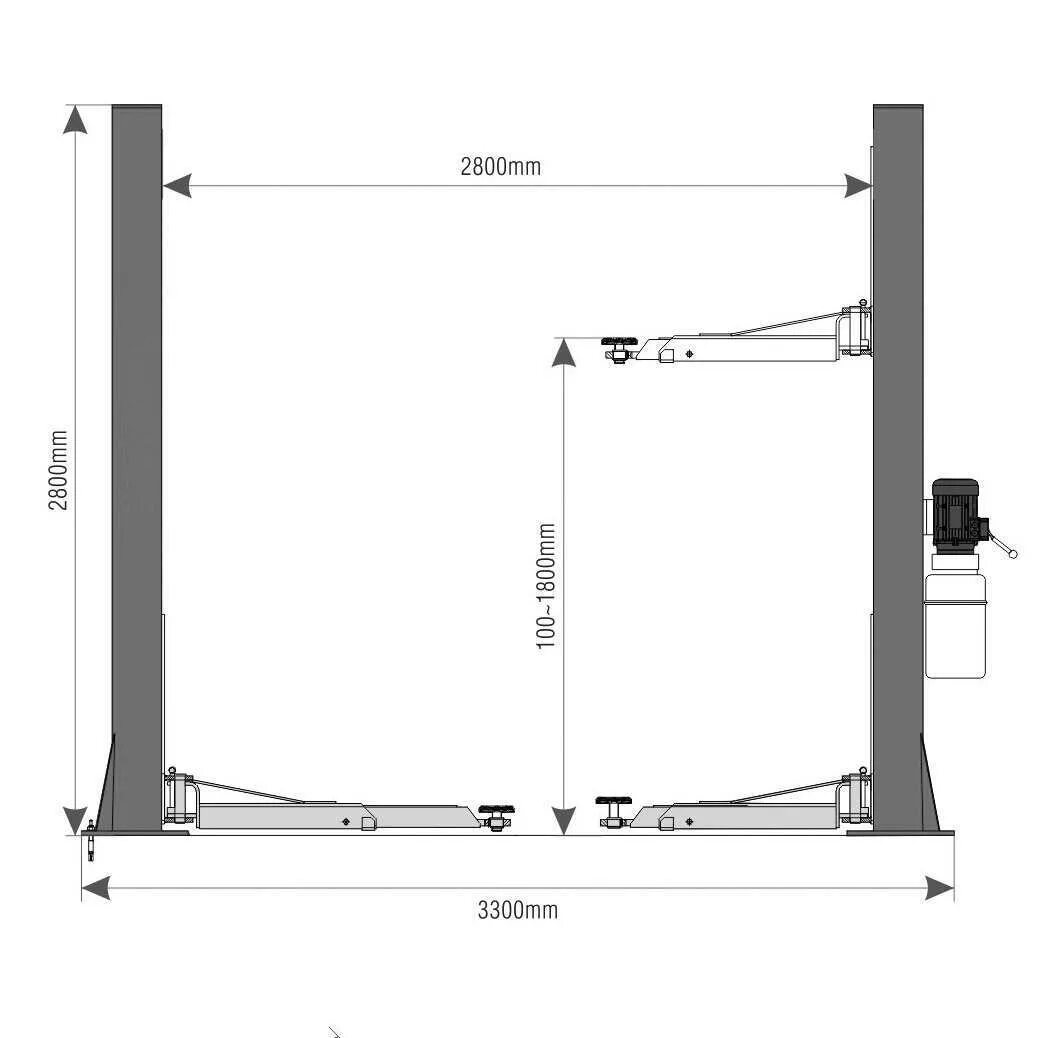
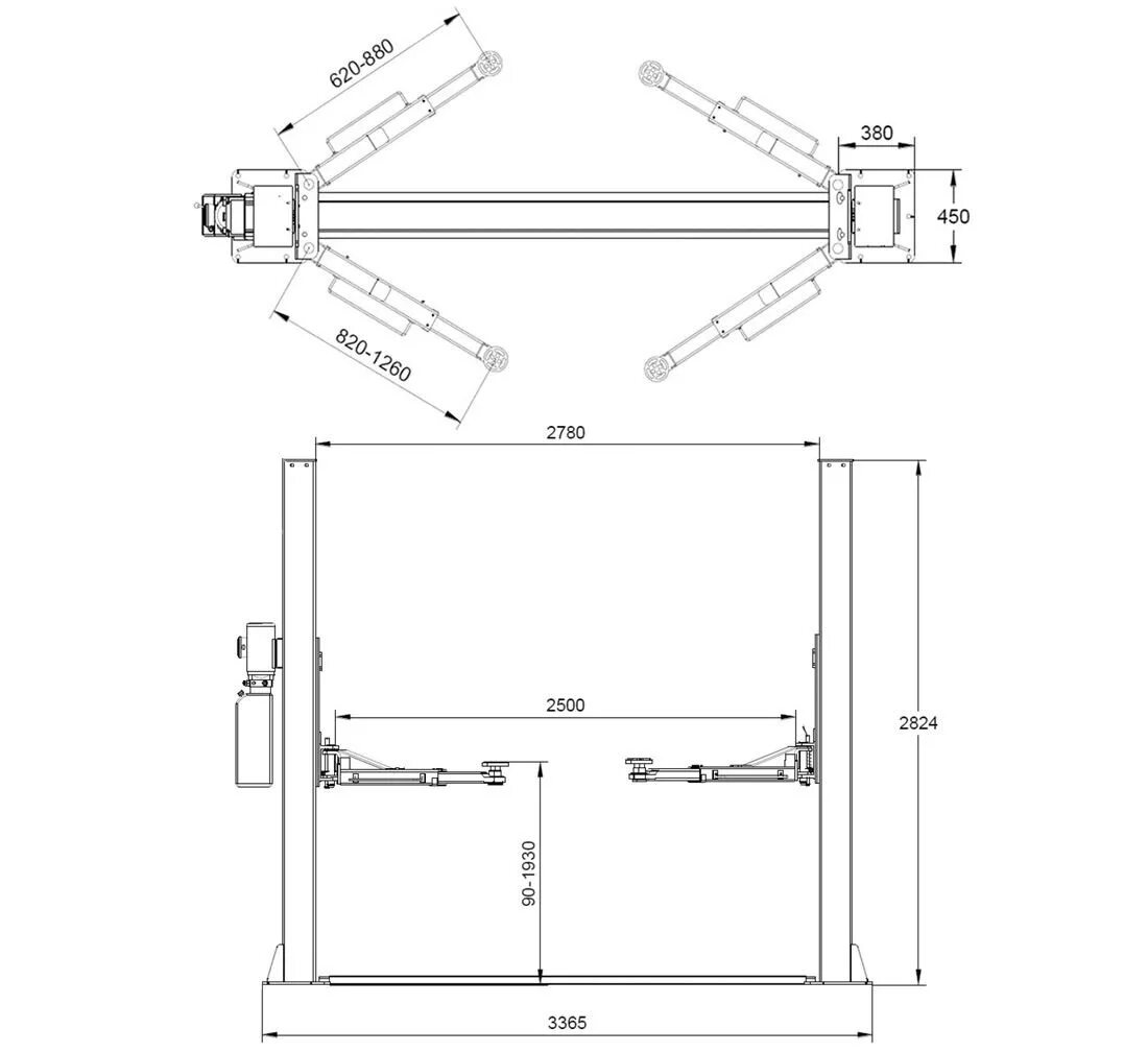
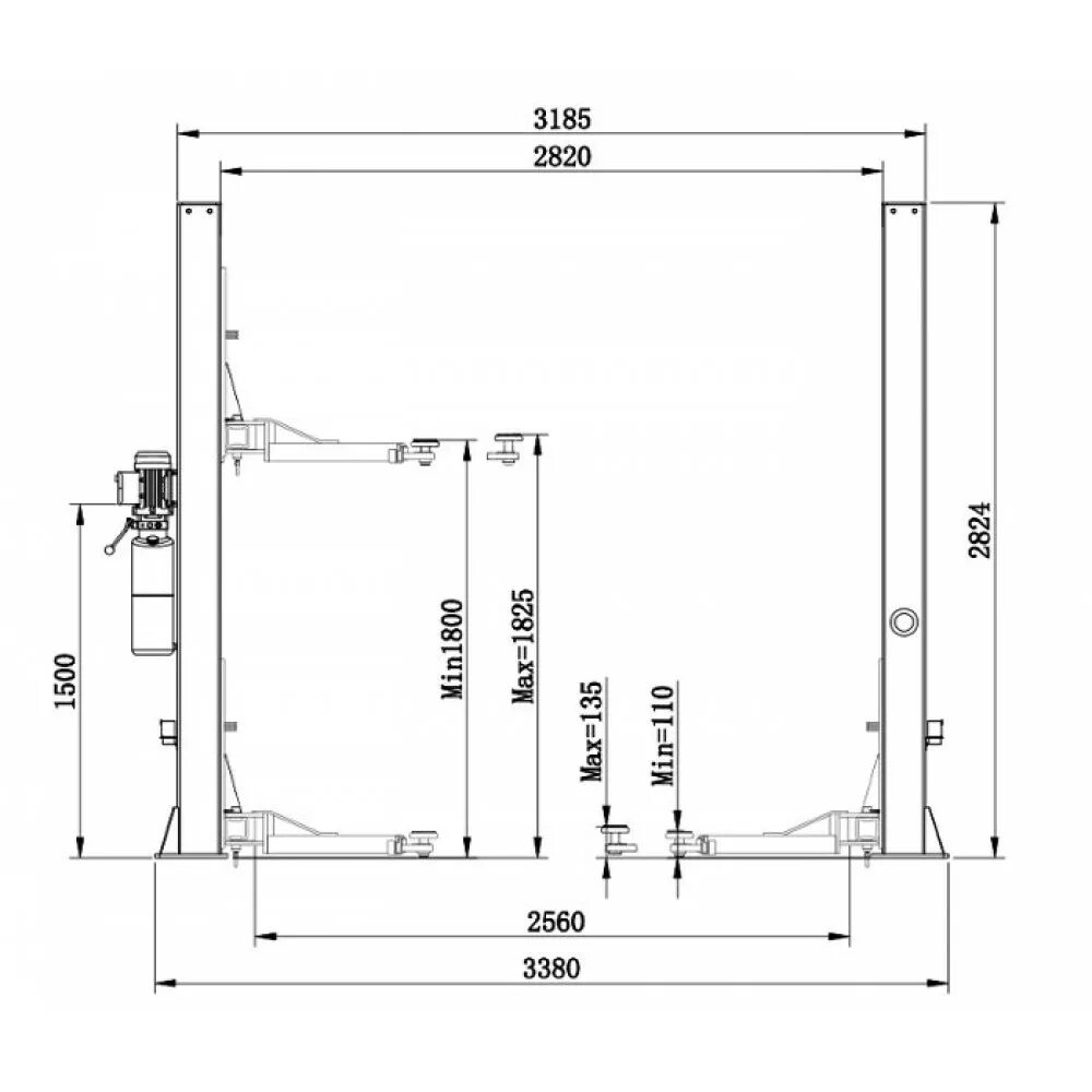
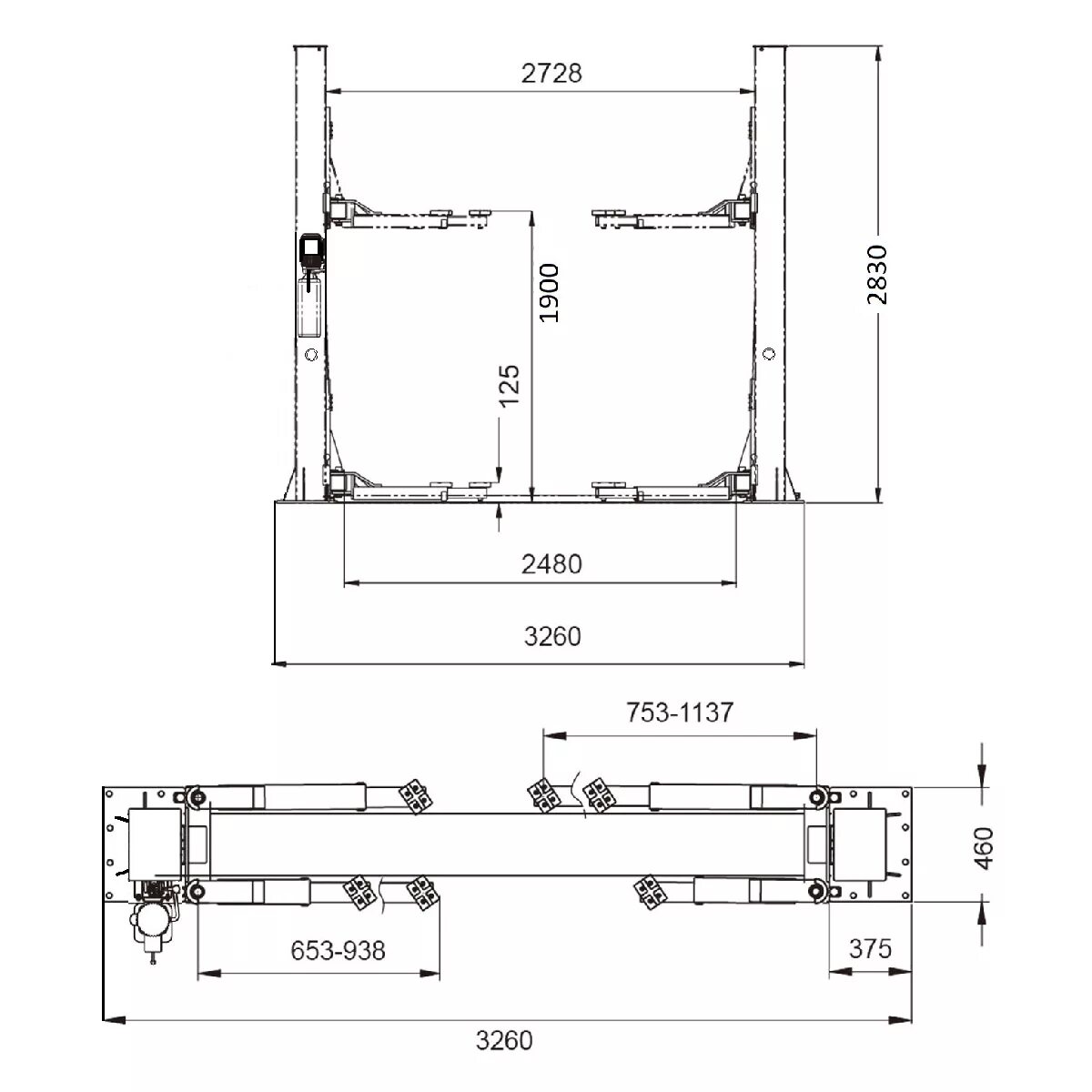
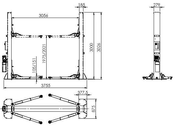
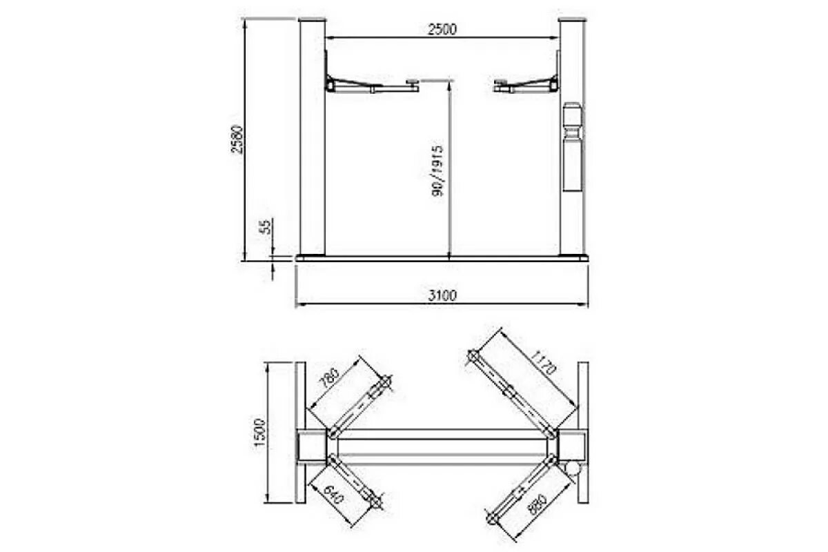
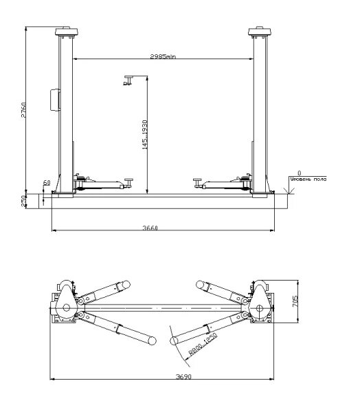
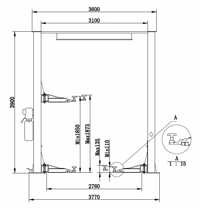
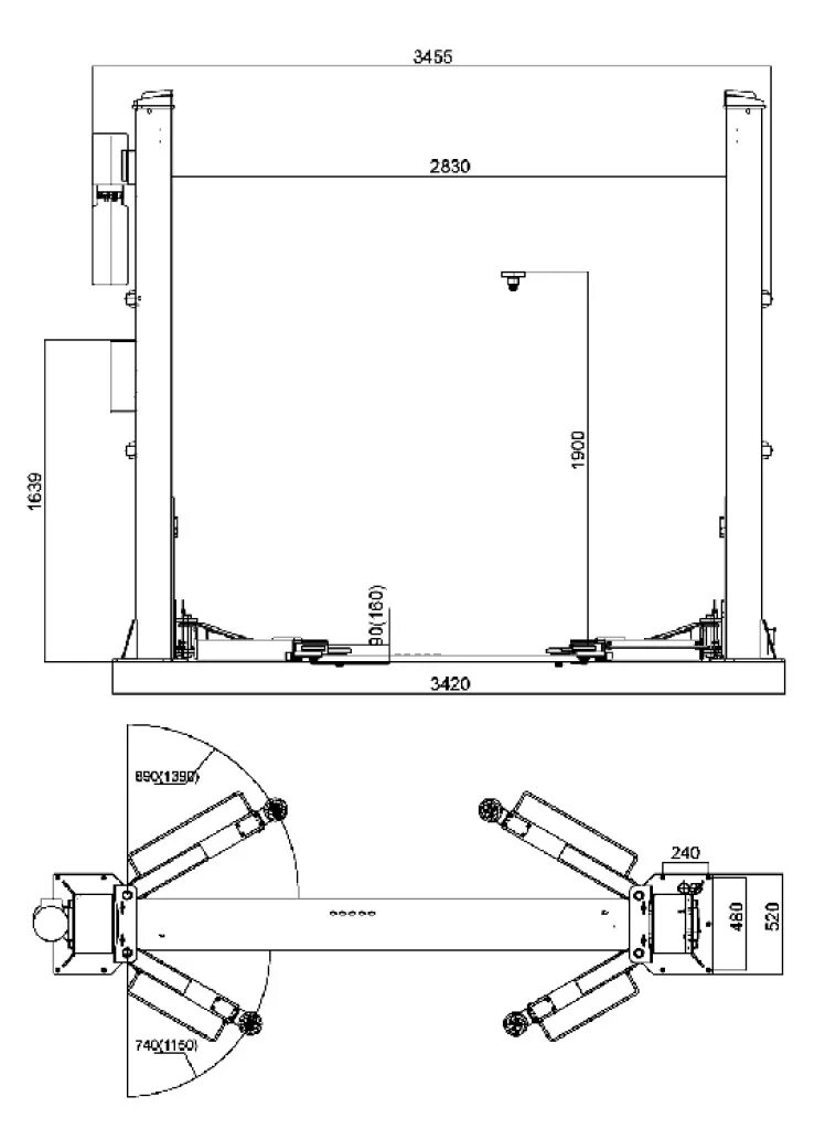
Подъемник габариты