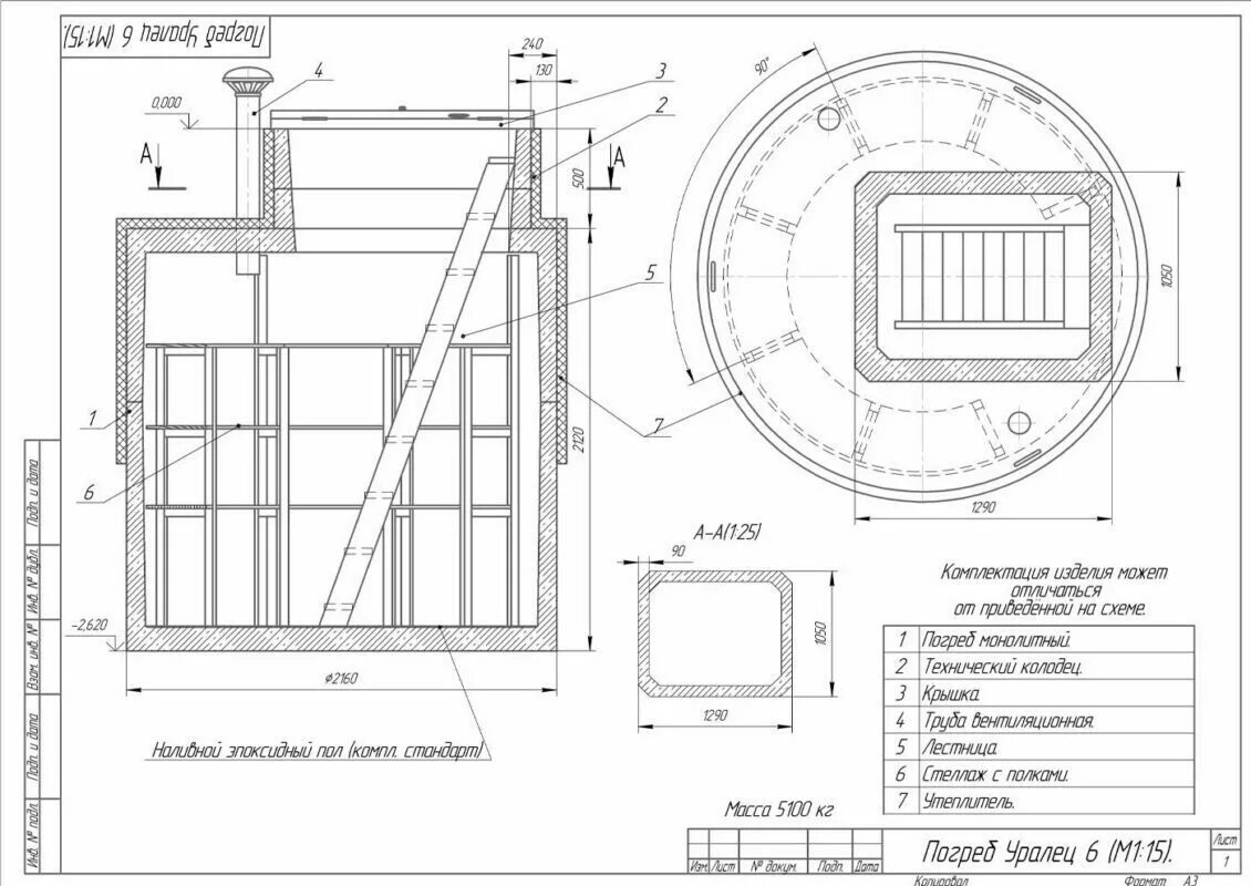
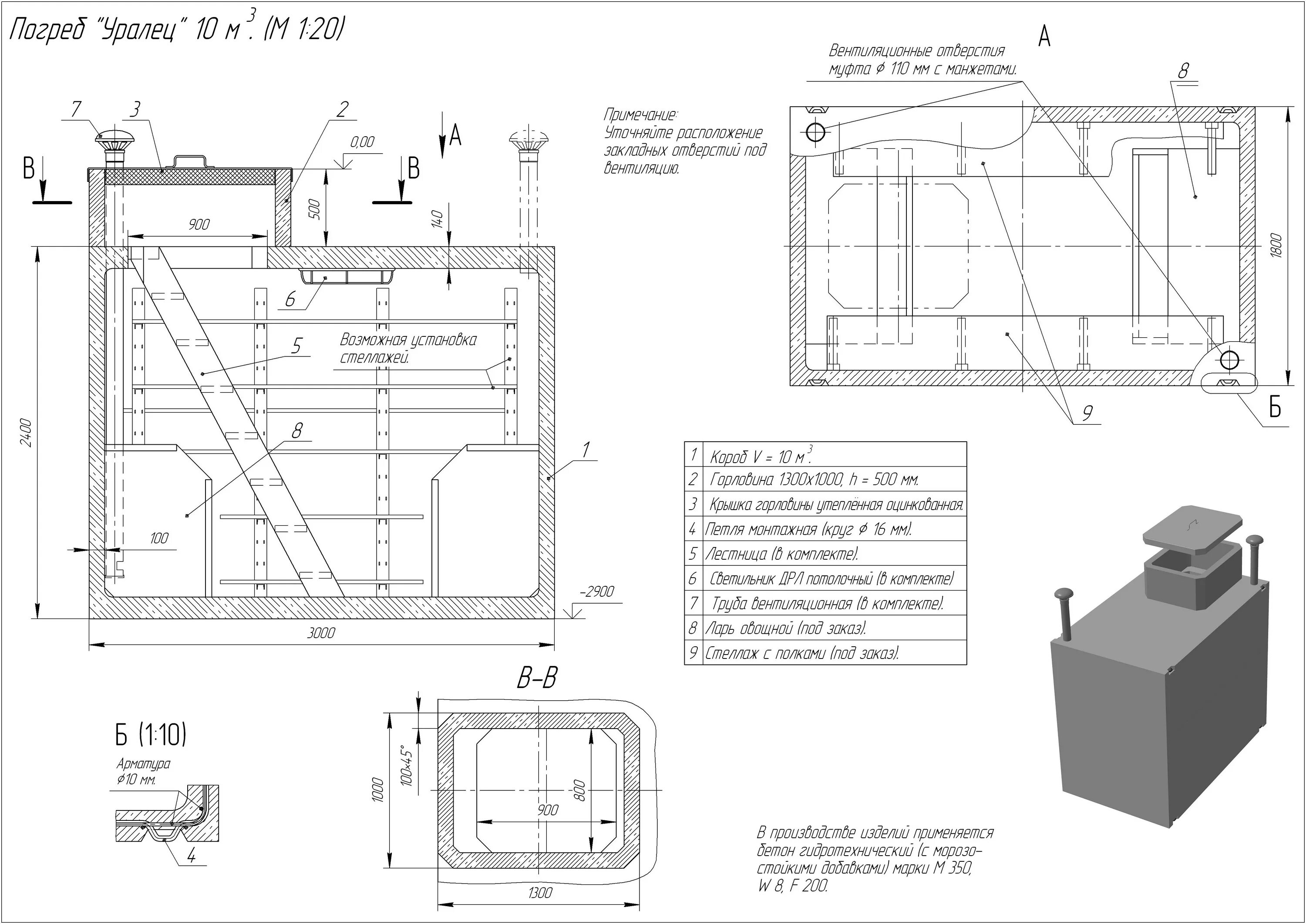
Погреб уралец